Prix
264 900€
Type
Appt. au 4ème
Pièces
T3
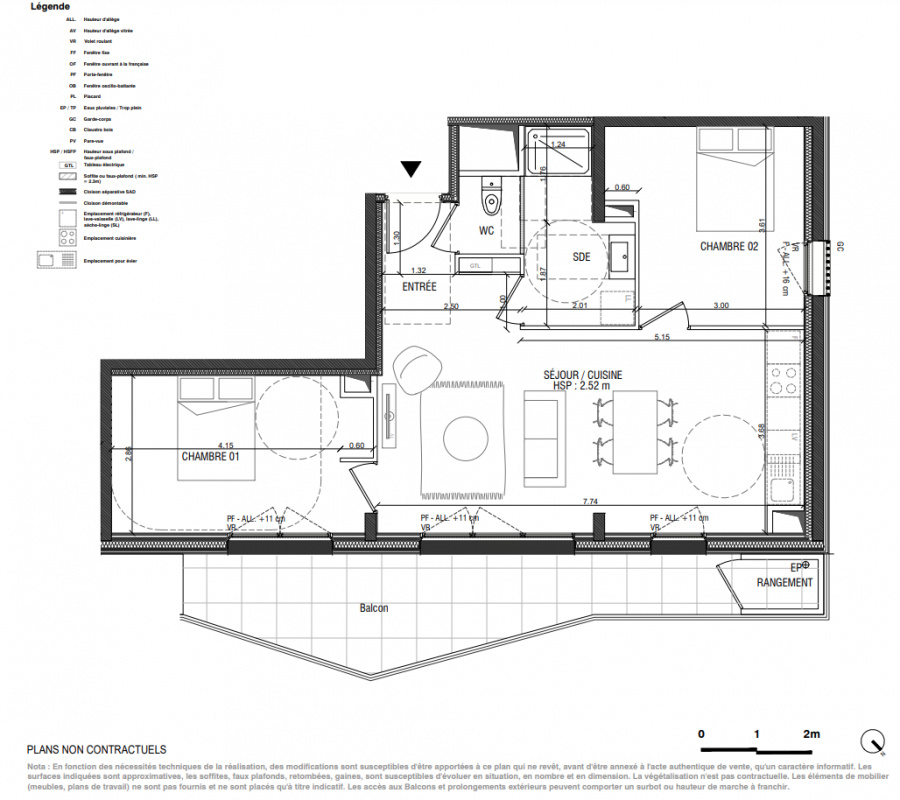
Surface
65 m²
Exposition
Nord
Ville
Nantes (44000)
Livraison
3ème trimestre 2027
Informations
01 81 80 39 10

Présentation du programme "NATUREO - VERDURA"

OFFRE EXCEPTIONNELLE : Jusqu'à 10 000 € de réduction + 0€ frais de notaire* !TRAVAUX EN COURSVous aspirez à un nouveau cadre de vie ? Découvrez NATURÉO à l'est de Nantes (rue Henri Loiret). Au sein de nos 2 résidences ESSENCIA ET VERDURA, choisissez votre futur appartement pour habiter : du 2 au 5 pièces, en plain-pied ou en duplex.Un cadre de vie idéal pour votre famille, au cœur d'un écrin de verdure entre vergers et ruisseaux, dans un environnement paisible à quelques pas des fermes urbaines, des écoles, et des équipements sportifs. Chaque appartement bénéficie d'un espace extérieur pour profiter pleinement de la nature omniprésente. Conçus pour votre confort et bien-être, ces logements sont économes en énergie (DPE A, RE2020), parfaits pour un quotidien serein.Pourquoi Choisir NATURÉO ? Environnement naturel : un cadre verdoyant à proximité de toutes les commodités essentielles. Des appartements confortables : espaces lumineux et bien agencés, adaptés aux besoins des familles, couples et seniors. Éco-responsabilité : habitats conçus selon les dernières normes énergétiques pour un mode de vie durable.Saisissez cette opportunité unique de devenir propriétaire dans un quartier où nature et modernité coexistent harmonieusement. Appartements neufs éligibles au Prêt à Taux Zéro, un vrai coup de pouce pour habiter à Nantes ! Contactez-nous dès maintenant pour planifier une visite à notre bureau de vente à Nantes. *Voir conditions sur natureo-nantes.fr

Autres logements T3 du programme "NATUREO - VERDURA"

Disponibilité Prix Genre Pièces Surface Étage
Voir
Disponible
292 400€ Appt. T3 67.4m2 0-RDC
Voir
Disponible
267 950€ Appt. T3 65m2 5ème
DO NOT CLICK