Prix
273 000€
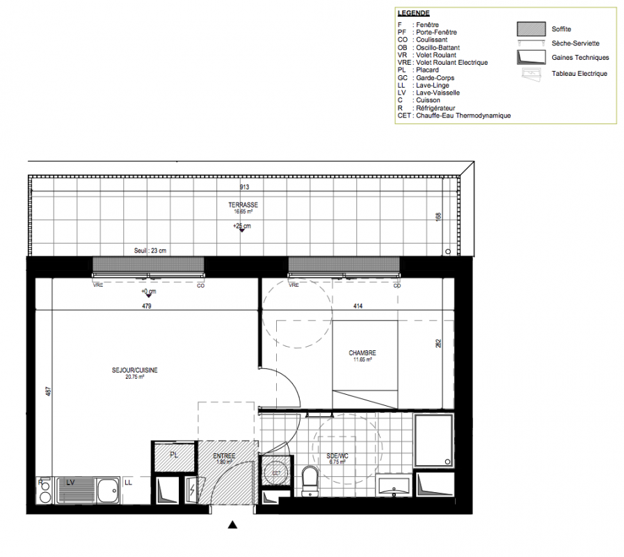
Type
Appt. au 0-RDC
Pièces
T2
Surface
40.95 m²
Exposition
-
Ville
Pornichet (44380)
Livraison
4ème trimestre 2026
Informations
01 81 80 39 10

Présentation du programme "Jardin d'Epona - PORNICHET"

***COMMISSION 6%***
FRAIS DE NOTAIRE OFFERTS
Découvrez Jardin d'Epona, la nouvelle réalisation Nacarat, située à Pornichet, à quelques minutes à pied du centre-ville et de la plage des libraires. La résidence propose des appartements du studio au 4 pièces avec balcon, terrasse ou jardin ainsi que deux maisons 4 et 5 pièces avec jardin, et offre un grand jardin commun.

Découvrez les prestations de qualité : local de retour de plage, chauffage par pompe à chaleur, cuisines équipées pour les studios et 2 pièces, volets roulants électriques dans toutes les pièces, une ou deux places de parking pour chaque logement, ascenseur, etc. Idéal pour investir ou pour habiter grâce au Prêt à Taux Zéro.* Voir les conditions au près de votre conseiller commercial.

Autres logements T2 du programme "Jardin d'Epona - PORNICHET"

Pas de logements disponibles
DO NOT CLICK