Ce lot n’est plus disponible chez VIANOVA ou est vendu.

Vous pouvez revenir dans 24h pour vérifier le stock à jour ou contacter un conseiller Vianova pour vérifier le stock en direct.
Vous pouvez également continuer votre recherche sur notre site « ici ».

Prix
182 500€
Type
Appt. au 2ème
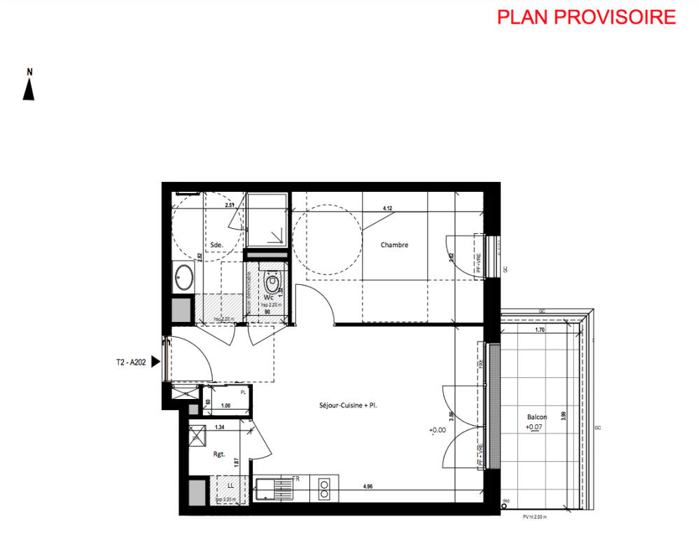
Pièces
T2
Surface
41.82 m²
Exposition
Est
Ville
Saint-Nazaire (44600)
Livraison
1er trimestre 2027
Informations
01 81 80 39 10

Présentation du programme "L'Initial"

FRAIS DE NOTAIRE OFFERTS* L’Initial – Une résidence intimiste à Saint-Marc-sur-Mer Idéalement située au 34 avenue de Saint-Nazaire, en plein cœur de Saint-Marc-sur-Mer entre La Baule/Pornichet et Saint-Nazaire, L’Initial propose une parenthèse résidentielle élégante et préservée. Avec seulement 15 logements, cette résidence à taille humaine séduit par son architecture balnéaire inspirée de l’ADN du littoral, conjuguant charme et modernité. Implantée dans un quartier calme et recherché, à deux pas des commerces, des écoles et à quelques minutes des plages, L’Initial incarne un cadre de vie paisible où chaque appartement bénéficie d’un extérieur (balcon ou terrasse) et de prestations soignées.Un lieu rare pour vivre ou investir à l’année, à la mer comme à la ville. Appartements du 2 au 4 pièces Contactez Christine ARHAY-LE MESTRE au 06 48 98 82 67 - arc44@groupearc.fr Espace de vente : 25 avenue de la République à St-Nazaire*Frais de notaire offerts, hors frais d'acte de prêt et d'établissement du règlement de copropriété. Offre valable jusqu’au 15 octobre 2025.

Autres logements T2 du programme "L'Initial"

Disponibilité Prix Genre Pièces Surface Étage
Voir
Disponible
204 167€ Appt. T2 53.88m2 0-RDC