Appt. n°LOA208

Programme "KENNEDY"

Ce lot n’est plus disponible chez VIANOVA ou est vendu.

Vous pouvez revenir dans 24h pour vérifier le stock à jour ou contacter un conseiller Vianova pour vérifier le stock en direct.
Vous pouvez également continuer votre recherche sur notre site « ici ».

Prix
307 000€
Type
Appt. au 2ème
Pièces
T4
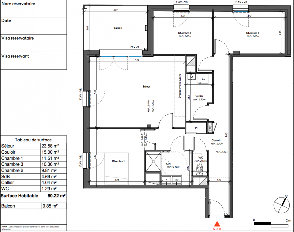
Surface
80.22 m²
Exposition
Nord
Ville
Avrillé (49240)
Livraison
4ème trimestre 2026
Informations
01 81 80 39 10

Présentation du programme "KENNEDY"

Situé à Avrillé, au sein d'un quartier résidentiel recherché, découvrez KENNEDY, le nouveau programme réalisé par VINCI Immobilier.
Entre vie urbaine et calme environnant, la résidence KENNEDY vous propose des appartements du studio au 4 pièces ou maisons 4/5 pièces prolongées par des espaces extérieurs généreux. Un coeur d'ilot végétalisé, particulièrement travaillé avec sa venelle piétonne, ses auvents collectifs et sa placette partagée, procure une ambiance "village" propice aux rencontres et la promenade.
De plus, les arrêts de tram et bus à proximité vous permettront de rejoindre le centre-ville d'Angers en quelques minutes. Avec la nature pour voisine, KENNEDY vous offre un cadre de vie paisible et agréable ; de quoi vous donner l'envie de vivre au sein de la fameuse Ville-Parc. ELIGIBLE PTZ *voir conditions en espace de vente

Autres logements T4 du programme "KENNEDY"

Disponibilité Prix Genre Pièces Surface Étage
Voir
Optionné
315 000€ Maison T4 85.23m2 0-RDC
DO NOT CLICK