Prix
267 000€  (TVA 20%)
244 750€  (TVA 10%)
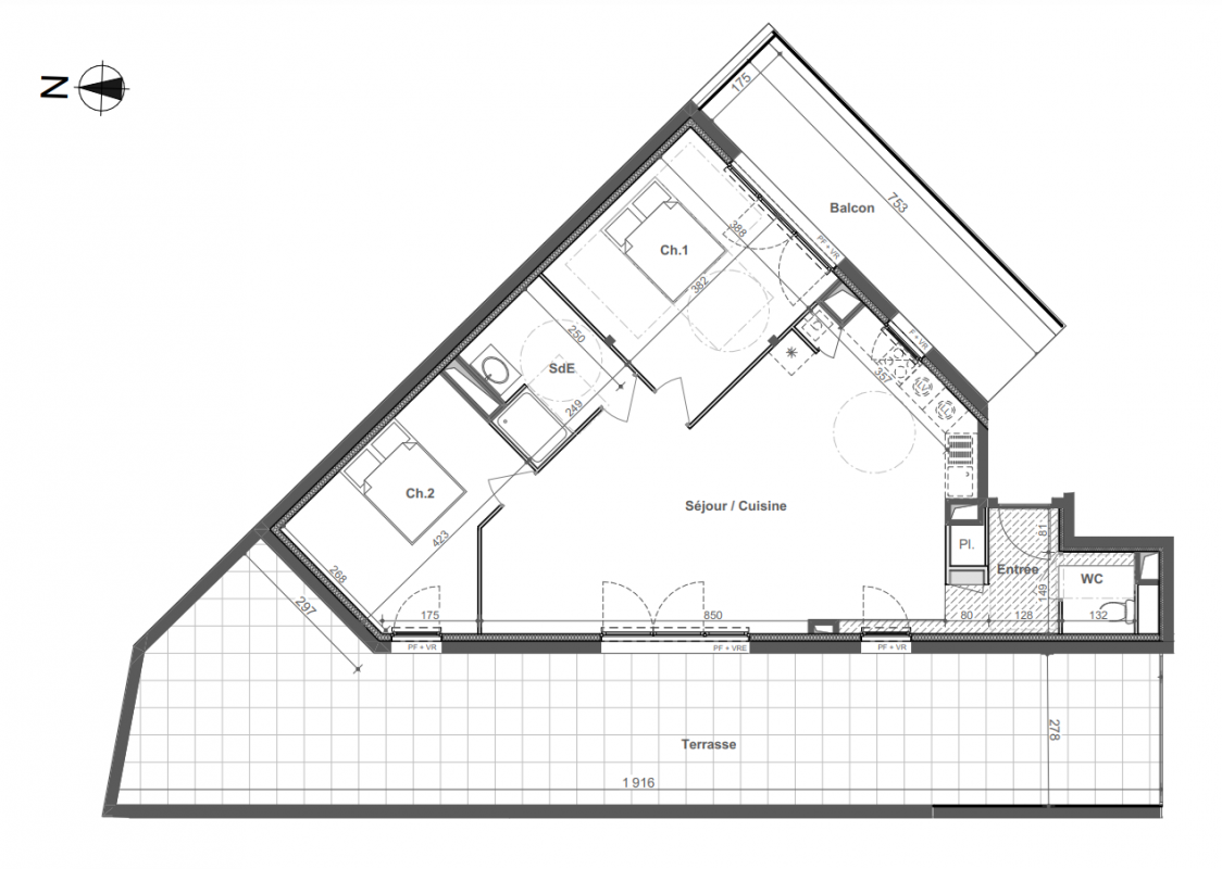
Type
Appt. au 4ème
Pièces
T3
Surface
78 m²
Exposition
Ouest
Ville
Challans (85300)
Livraison
2ème trimestre 2027
Informations
01 81 80 39 10

Présentation du programme "KALEA"

Devenez propriétaire de votre appart neuf : ON VOUS REMBOURSE JUSQU'A 500 euros PAR MOIS (1) pendant les 3 premières années + FRAIS DE NOTAIRE OFFERTS (2) jusqu'au 31 mars 2026.UNE ADRESSE IDEALE DANS CHALLANS POUR VIVRE OU INVESTIR

Située à la croisée de Nantes-St-Nazaire, de La Roche-sur-Yon et de Noirmoutier, Challans offre une qualité de vie remarquable entre Marais Breton-Vendéen et les plages de la Côte de Lumière.

A 600 m. du centre-ville, votre résidence Kaléa s'implante au calme et vous propose seulement 19 appartements du 2 au 4 pièces, dont certains aux belles surfaces intérieures comme extérieures en dernier étage.

ESPACE DE VENTE SUR PLACE : 35 RUE DE NANTES
Ouvert sur rendez-vous

Autres logements T3 du programme "KALEA"

Disponibilité Prix Genre Pièces Surface Étage
Voir
Optionné
229 000€ Appt. T3 66m2 3ème
DO NOT CLICK