157 000€
Appt. au 1er
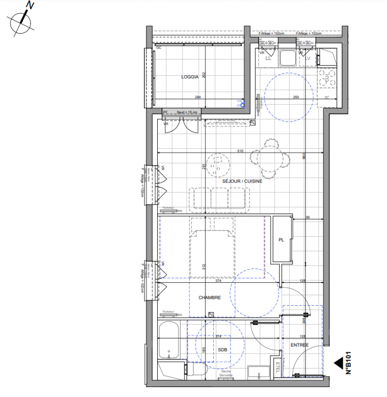
T2
43.85 m²
Nord
Dijon (21000)
1er trimestre 2028
01 81 80 39 10
Présentation du programme "L'OREE DES MARAICHERS"
EN CE MOMENT : FRAIS DE NOTAIRE OFFERTS !*Découvrez une nouvelle résidence à taille humaine située au cœur de l’écoquartier du Jardin des Maraîchers, sur le boulevard de Chicago. Ce quartier en plein renouveau propose un cadre de vie unique, où la nature, la modernité et l’accessibilité cohabitent harmonieusement.
À seulement quelques minutes de l’Université de Bourgogne, du CHU de Dijon et du parc de la Colombière, cette future résidence vous invite à vivre dans un environnement urbain repensé, privilégiant les mobilités douces, avec des pistes cyclables, des cheminements piétons et des transports en commun à proximité immédiate. Commerces, écoles, services de santé et équipements publics se trouvent également à deux pas.
Chaque appartement, du studio au 3 pièces, est pensé pour offrir confort, luminosité et fonctionnalité. Vous profitez d’espaces bien agencés, d’ouvertures généreuses et d’un cadre végétalisé propice au bien-être.Envie d’investir ? Cette résidence est éligible au nouveau dispositif d’investissement locatif JEANBRUN, pour constituer un patrimoine, réduire vos impôts et préparer votre retraite !
Ce programme est éligible au Prêt à Taux Zéro 0% (PTZ), un véritable coup de pouce pour les primo-accédants souhaitant un projet d'achat immobilier à Dijon. C’est l’opportunité idéale pour un premier achat immobilier dans un quartier d’avenir, où qualité de vie et durabilité sont au cœur du projet.*Frais de notaire offerts pour tout contrat de réservation signé jusqu'au 31/05/2026 inclus régulièrement réitéré par acte notarié pour les 3 premiers réservataires
Autres logements T2 du programme "L'OREE DES MARAICHERS"
| Disponibilité | Prix | No | Genre | Pièces | Surface | Étage | Disponibilité | Prix | ||
|---|---|---|---|---|---|---|---|---|---|---|
| Voir | Disponible | 162 000€ | B201 | Appt. | T2 | 43.85m2 | 2ème | Disponible | 162 000€ | Voir |
| Voir | Disponible | 171 000€ | B301 | Appt. | T2 | 43.85m2 | 3ème | Disponible | 171 000€ | Voir |
| Voir | Disponible | 173 000€ | B303 | Appt. | T2 | 45.04m2 | 3ème | Disponible | 173 000€ | Voir |
| Voir | Disponible | 175 000€ | B401 | Appt. | T2 | 43.85m2 | 4ème | Disponible | 175 000€ | Voir |
| Voir | Disponible | 177 000€ | B403 | Appt. | T2 | 45.04m2 | 4ème | Disponible | 177 000€ | Voir |