206 000€
Appt. au 3ème
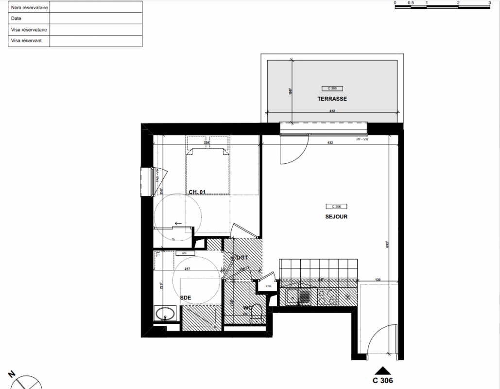
T2
45 m²
-
Lannion (22300)
4ème trimestre 2027
01 81 80 39 10
Présentation du programme "Le Clos des Capucins"
GRAND LANCEMENT COMMERCIAL A LANNION LE 19 JUIN 2025 - Le Clos des Capucins OFFRE DE LANCEMENT Pour les 5 premiers réservataires : Frais de notaire offerts + 2 500 € de remise par pièce. Des appartements du studio au T5, avec balcon, terrasse, loggia ou jardin, pour habiter ou investir dans un cadre de vie privilégié. Votre nouvelle vie en plein coeur de Lannion : sérénité, confort et nature au quotidien En plein centre-ville, à seulement 250 mètres de la Place du Général Leclerc et à deux pas du marché le plus renommé du département, Promoty vous invite à découvrir un cadre de vie unique, pensé pour votre bien-être et votre tranquillité. Nichée dans un environnement calme et verdoyant, notre résidence intimiste de 51 appartements répartis sur 3 bâtiments s'intègre avec élégance au charme historique du centre-ville. Son architecture contemporaine, sobre et harmonieuse, respecte l'esprit du lieu, à proximité de la Chapelle des Ursulines, tout en proposant des logements modernes, faciles à vivre et largement ouverts sur l'extérieur. Chaque appartement a été conçu pour votre confort au quotidien : •De grands espaces de vie lumineux, grâce à de larges ouvertures, •De généreux extérieurs - terrasses, balcons, jardins privatifs ou loggias - pour profiter pleinement de la nature en coeur de ville, •Un magnifique jardin paysager en coeur d'îlot, véritable havre de paix où il fait bon se détendre. La résidence est entièrement accessible aux personnes à mobilité réduite (PMR) et répond aux exigeantes normes environnementales RE2020, vous garantissant : •un confort thermique et acoustique optimal, •une parfaite maîtrise de vos consommations d'énergie. Pour plus de praticité, des parkings privatifs et des caves viennent compléter votre lieu de vie. Avec cette nouvelle résidence, vous profitez pleinement des atouts du centre-ville - commerces, services, marché, animations - tout en bénéficiant d'un environnement sécurisé, convivial et apaisant. Faites le choix d'un quotidien serein et confortable, au coeur de Lannion et prenez rapidement contact avec l'un de nos conseillers !
Autres logements T2 du programme "Le Clos des Capucins"
Disponibilité | Prix | No | Genre | Pièces | Surface | Étage | Disponibilité | Prix | ||
---|---|---|---|---|---|---|---|---|---|---|
Voir | Disponible | 165 000€ | C105 | Appt. | T2 | 38.2m2 | 1er | Disponible | 165 000€ | Voir |
Voir | Disponible | 170 000€ | C205 | Appt. | T2 | 38.2m2 | 2ème | Disponible | 170 000€ | Voir |
Voir | Disponible | 196 000€ | B103 | Appt. | T2 | 39.1m2 | 1er | Disponible | 196 000€ | Voir |
Voir | Disponible | 182 000€ | C307 | Appt. | T2 | 42.9m2 | 3ème | Disponible | 182 000€ | Voir |
Voir | Disponible | 177 000€ | C208 | Appt. | T2 | 41.9m2 | 2ème | Disponible | 177 000€ | Voir |
Voir | Disponible | 175 000€ | C106 | Appt. | T2 | 43.1m2 | 1er | Disponible | 175 000€ | Voir |
Voir | Disponible | 192 000€ | C206 | Appt. | T2 | 43.1m2 | 2ème | Disponible | 192 000€ | Voir |
Voir | Disponible | 170 000€ | C005 | Appt. | T2 | 45m2 | 0-RDC | Disponible | 170 000€ | Voir |
Voir | Disponible | 201 000€ | C207 | Appt. | T2 | 45.15m2 | 2ème | Disponible | 201 000€ | Voir |
Voir | Disponible | 221 000€ | C303 | Appt. | T2 | 45.85m2 | 3ème | Disponible | 221 000€ | Voir |
Voir | Disponible | 201 000€ | C201 | Appt. | T2 | 49.5m2 | 2ème | Disponible | 201 000€ | Voir |