Ce lot n’est plus disponible chez VIANOVA ou est vendu.

Vous pouvez revenir dans 24h pour vérifier le stock à jour ou contacter un conseiller Vianova pour vérifier le stock en direct.
Vous pouvez également continuer votre recherche sur notre site « ici ».

Prix
148 000€
Type
Appt. au 4ème
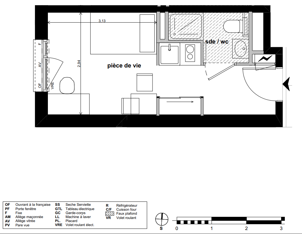
Pièces
Studio
Surface
17.55 m²
Exposition
-
Ville
Rennes (35000)
Livraison
1er trimestre 2028
Informations
01 81 80 39 10

Présentation du programme "KLEEZI | ALMA"

[ LANCEMENT – INVESTISSEMENT LOCATIF ] // PACK MEUBLES OFFERT – Profitez-en dès maintenant !*

Découvrez KLEEZI | ALMA, une résidence étudiants et jeunes actifs idéalement située à RENNES.

Située rue de l'ALMA, la résidence bénéficie d'un emplacement stratégique au cœur d’une métropole étudiante en plein essor, à proximité des écoles, universités et des commerces du quotidien.

Avec Kleezi, découvrez un nouveau concept d’investissement locatif meublé clé en main, alliant rentabilité, liberté et sérénité.

Tout en étant propriétaire de votre logement, vous vous appuyez sur des professionnels de la gestion locative pour gérer le quotidien de votre investissement (recherche de locataires, gestion locative, garantie de loyers impayés et de vacance, et accompagnement fiscal personnalisé).

Une solution clé en main, conçue pour investir sans contrainte.

Les studios tous meublés et équipés, sont complétés par des espaces partagés : cuisine et salle commune, terrasse paysagée et laverie.

Un placement sûr et porteur sur un marché étudiant en pleine croissance, au sein d’une ville régulièrement classée parmi les meilleures de France pour étudier et investir.

Kleezi – investissez simple, serein et durable.

Contactez nos conseillers Lamotte à RENNES, ou rendez-vous sur notre site Vianova.fr, pour en savoir plus et profiter de cette opportunité d'investissement.
* Voir conditions de l'offre sur Lamotte.fr

Autres logements Studio du programme "KLEEZI | ALMA"

Disponibilité Prix Genre Pièces Surface Étage
Voir
Archivé
149 000€ Appt. Studio 21.42m2 0-RDC
Voir
Archivé
149 000€ Appt. Studio 21.67m2 0-RDC
Voir
Archivé
159 000€ Appt. Studio 24m2 0-RDC
Voir
Archivé
174 000€ Appt. Studio 24.67m2 1er
Voir
Archivé
164 000€ Appt. Studio 22.9m2 1er
Voir
Archivé
139 000€ Appt. Studio 19.11m2 1er
Voir
Archivé
142 000€ Appt. Studio 19.15m2 1er
Voir
Archivé
163 000€ Appt. Studio 22.92m2 2ème
Voir
Archivé
177 000€ Appt. Studio 24.61m2 2ème
Voir
Archivé
170 000€ Appt. Studio 22.9m2 2ème
Voir
Archivé
145 000€ Appt. Studio 19.15m2 2ème
Voir
Archivé
145 000€ Appt. Studio 17.59m2 3ème
Voir
Archivé
147 000€ Appt. Studio 18.6m2 3ème
Voir
Archivé
166 000€ Appt. Studio 22.94m2 3ème
Voir
Archivé
180 000€ Appt. Studio 24.61m2 3ème
Voir
Archivé
170 000€ Appt. Studio 22.85m2 3ème
Voir
Archivé
145 000€ Appt. Studio 19.06m2 3ème
Voir
Archivé
140 000€ Appt. Studio 18.63m2 3ème
Voir
Archivé
169 000€ Appt. Studio 22.92m2 4ème
Voir
Archivé
183 000€ Appt. Studio 24.66m2 4ème
Voir
Archivé
173 000€ Appt. Studio 22.9m2 4ème
Voir
Archivé
143 000€ Appt. Studio 18.63m2 4ème
Voir
Archivé
151 000€ Appt. Studio 19.15m2 4ème
Voir
Archivé
150 000€ Appt. Studio 18.57m2 4ème
Voir
Archivé
153 000€ Appt. Studio 18.6m2 5ème
Voir
Archivé
164 000€ Appt. Studio 19.31m2 5ème
Voir
Archivé
162 000€ Appt. Studio 18.3m2 5ème
Voir
Archivé
174 000€ Appt. Studio 21m2 5ème
Voir
Archivé
151 000€ Appt. Studio 19.07m2 5ème
Voir
Archivé
146 000€ Appt. Studio 18.63m2 5ème
Voir
Archivé
153 000€ Appt. Studio 18.5m2 5ème
Voir
Archivé
156 000€ Appt. Studio 17.67m2 6ème
Voir
Archivé
158 000€ Appt. Studio 18.63m2 6ème
Voir
Archivé
164 000€ Appt. Studio 19.28m2 6ème
Voir
Archivé
162 000€ Appt. Studio 18.15m2 6ème
Voir
Archivé
191 000€ Appt. Studio 21.96m2 6ème
Voir
Archivé
151 000€ Appt. Studio 18.63m2 6ème
Voir
Archivé
159 000€ Appt. Studio 19.15m2 6ème
Voir
Archivé
158 000€ Appt. Studio 18.55m2 6ème
DO NOT CLICK