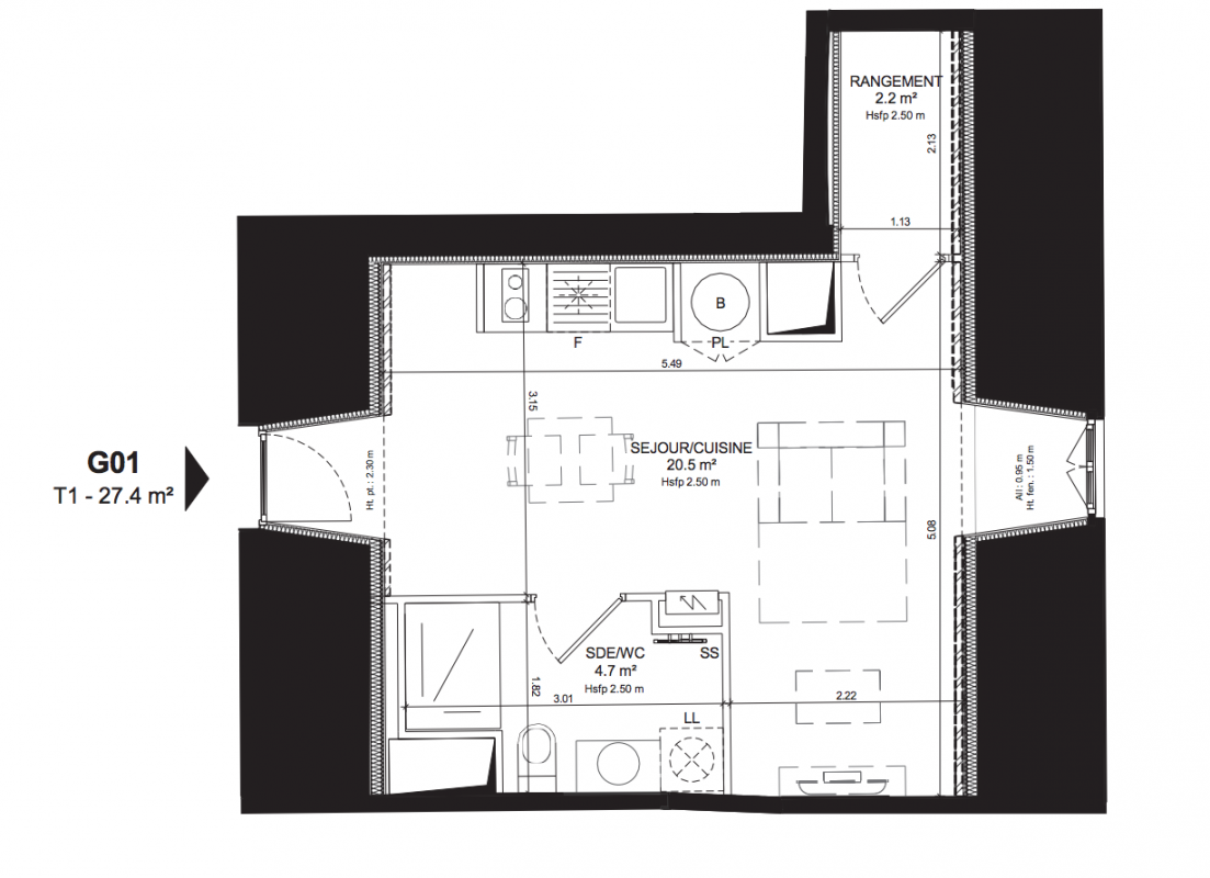
229 200€
- €
Appt. au 0-RDC
Studio
27.4 m²
Sud
Rodez (12000)
-
01 81 80 39 10
Présentation du programme "LE QUADRILATERE DE COMBAREL"
Situé au cœur de Rodez, Le Quadrilatère témoigne d’une histoire riche de l’hôpital Sainte‑Marthe fondé au XIIIᵉ siècle. Aujourd’hui cet ancien hôpital s’apprête à écrire une nouvelle page avec la création de 122 logements (du studio au 4 pièces).
Préservant les volumes généreux d’origine, le Quadrilatère offrira de vastes espaces de vie ouverts sur le paysage ou sur la cathédrale, tandis que les deux cours intérieures, agrémentées d’arbres, de fontaines et de terrasses, créeront un véritable havre de paix. En réemployant les matériaux d’origine et en valorisant un patrimoine qui aurait inspiré Pierre Soulages, cette réhabilitation allie respect du passé, qualité architecturale et réponse aux enjeux contemporains de la ville.
Autres logements Studio du programme "LE QUADRILATERE DE COMBAREL"
| Disponibilité | Prix | No | Genre | Pièces | Surface | Étage | Disponibilité | Prix | ||
|---|---|---|---|---|---|---|---|---|---|---|
| Voir | Disponible | 299 900€ | A01 | Appt. | Studio | 34.9m2 | 0-RDC | Disponible | 299 900€ Prix foncier 20 700€ Prix travaux 279 200€ | Voir |
| Voir | Optionné | 231 000€ | A10 | Appt. | Studio | 25.8m2 | 0-RDC | Optionné Mais pas encore vendu 😉 | 231 000€ Prix foncier 15 900€ Prix travaux 215 100€ | Voir |
| Voir | Disponible | 261 800€ | F05 | Appt. | Studio | 29.1m2 | 0-RDC | Disponible | 261 800€ Prix foncier 18 100€ Prix travaux 243 700€ | Voir |
| Voir | Disponible | 270 400€ | F12 | Appt. | Studio | 30.2m2 | 1er | Disponible | 270 400€ Prix foncier 18 700€ Prix travaux 251 700€ | Voir |
| Voir | Optionné | 272 100€ | F14 | Appt. | Studio | 31.2m2 | 1er | Optionné Mais pas encore vendu 😉 | 272 100€ Prix foncier 18 800€ Prix travaux 253 300€ | Voir |
| Voir | Disponible | 274 900€ | F15 | Appt. | Studio | 30.7m2 | 1er | Disponible | 274 900€ Prix foncier 19 000€ Prix travaux 255 900€ | Voir |
| Voir | Disponible | 293 800€ | F16 | Appt. | Studio | 34.3m2 | 1er | Disponible | 293 800€ Prix foncier 20 300€ Prix travaux 273 500€ | Voir |
| Voir | Disponible | 269 500€ | F21 | Appt. | Studio | 30.9m2 | 2ème | Disponible | 269 500€ Prix foncier 18 600€ Prix travaux 250 900€ | Voir |
| Voir | Disponible | 273 000€ | F22 | Appt. | Studio | 30.5m2 | 2ème | Disponible | 273 000€ Prix foncier 18 800€ Prix travaux 254 200€ | Voir |
| Voir | Optionné | 287 100€ | F24 | Appt. | Studio | 33.7m2 | 2ème | Optionné Mais pas encore vendu 😉 | 287 100€ Prix foncier 19 800€ Prix travaux 267 300€ | Voir |
| Voir | Disponible | 292 700€ | F25 | Appt. | Studio | 32.8m2 | 2ème | Disponible | 292 700€ Prix foncier 20 200€ Prix travaux 272 500€ | Voir |
| Voir | Disponible | 279 100€ | G02 | Appt. | Studio | 31.9m2 | 0-RDC | Disponible | 279 100€ Prix foncier 19 300€ Prix travaux 259 800€ | Voir |
| Voir | Optionné | 189 800€ | G15 | Appt. | Studio | 21.2m2 | 0-RDC | Optionné Mais pas encore vendu 😉 | 189 800€ Prix foncier 13 100€ Prix travaux 176 700€ | Voir |
| Voir | Disponible | 268 600€ | A14 | Appt. | Studio | 29.8m2 | 0-RDC | Disponible | 268 600€ Prix foncier 18 500€ Prix travaux 250 100€ | Voir |
| Voir | Disponible | 270 900€ | A15 | Appt. | Studio | 30m2 | 0-RDC | Disponible | 270 900€ Prix foncier 18 700€ Prix travaux 252 200€ | Voir |
| Voir | Disponible | 274 500€ | A02 | Appt. | Studio | 31.3m2 | 0-RDC | Disponible | 274 500€ Prix foncier 18 900€ Prix travaux 255 600€ | Voir |
| Voir | Disponible | 258 800€ | B05 | Appt. | Studio | 28.9m2 | 0-RDC | Disponible | 258 800€ Prix foncier 17 900€ Prix travaux 240 900€ | Voir |
| Voir | Optionné | 259 600€ | B11 | Appt. | Studio | 29m2 | 1er | Optionné Mais pas encore vendu 😉 | 259 600€ Prix foncier 17 900€ Prix travaux 241 700€ | Voir |
| Voir | Disponible | 250 700€ | B12 | Appt. | Studio | 28m2 | 1er | Disponible | 250 700€ Prix foncier 17 300€ Prix travaux 233 400€ | Voir |
| Voir | Disponible | 272 100€ | B16 | Appt. | Studio | 31.2m2 | 1er | Disponible | 272 100€ Prix foncier 18 800€ Prix travaux 253 300€ | Voir |
| Voir | Disponible | 273 800€ | A03 | Appt. | Studio | 30.5m2 | 0-RDC | Disponible | 273 800€ Prix foncier 18 900€ Prix travaux 254 900€ | Voir |
| Voir | Disponible | 295 500€ | B23 | Appt. | Studio | 34.1m2 | 2ème | Disponible | 295 500€ Prix foncier 20 400€ Prix travaux 275 100€ | Voir |
| Voir | Disponible | 275 700€ | C03 | Appt. | Studio | 30.8m2 | 0-RDC | Disponible | 275 700€ Prix foncier 19 000€ Prix travaux 256 700€ | Voir |
| Voir | Disponible | 274 000€ | C04 | Appt. | Studio | 30.6m2 | 0-RDC | Disponible | 274 000€ Prix foncier 18 900€ Prix travaux 255 100€ | Voir |
| Voir | Disponible | 248 900€ | C11 | Appt. | Studio | 27.8m2 | 1er | Disponible | 248 900€ Prix foncier 17 200€ Prix travaux 231 700€ | Voir |
| Voir | Disponible | 279 100€ | A04 | Appt. | Studio | 31.9m2 | 0-RDC | Disponible | 279 100€ Prix foncier 19 300€ Prix travaux 259 800€ | Voir |
| Voir | Disponible | 262 300€ | C12 | Appt. | Studio | 29.3m2 | 1er | Disponible | 262 300€ Prix foncier 18 100€ Prix travaux 244 200€ | Voir |
| Voir | Disponible | 253 400€ | C14 | Appt. | Studio | 28.3m2 | 1er | Disponible | 253 400€ Prix foncier 17 500€ Prix travaux 235 900€ | Voir |
| Voir | Disponible | 254 800€ | C20 | Appt. | Studio | 28.7m2 | 2ème | Disponible | 254 800€ Prix foncier 17 600€ Prix travaux 237 200€ | Voir |
| Voir | Disponible | 265 000€ | C21 | Appt. | Studio | 29.6m2 | 2ème | Disponible | 265 000€ Prix foncier 18 300€ Prix travaux 246 700€ | Voir |
| Voir | Disponible | 279 100€ | C23 | Appt. | Studio | 32m2 | 2ème | Disponible | 279 100€ Prix foncier 19 300€ Prix travaux 259 800€ | Voir |
| Voir | Disponible | 275 400€ | A05 | Appt. | Studio | 31.9m2 | 0-RDC | Disponible | 275 400€ Prix foncier 19 000€ Prix travaux 256 400€ | Voir |
| Voir | Disponible | 299 100€ | C25 | Appt. | Studio | 34.7m2 | 2ème | Disponible | 299 100€ Prix foncier 20 600€ Prix travaux 278 500€ | Voir |
| Voir | Disponible | 286 400€ | C31 | Appt. | Studio | 31.6m2 | 3ème | Disponible | 286 400€ Prix foncier 19 800€ Prix travaux 266 600€ | Voir |
| Voir | Disponible | 275 100€ | C32 | Appt. | Studio | 29.7m2 | 3ème | Disponible | 275 100€ Prix foncier 19 000€ Prix travaux 256 100€ | Voir |
| Voir | Disponible | 246 200€ | D03 | Appt. | Studio | 27.5m2 | 0-RDC | Disponible | 246 200€ Prix foncier 17 000€ Prix travaux 229 200€ | Voir |
| Voir | Disponible | 283 700€ | A06 | Appt. | Studio | 33m2 | 0-RDC | Disponible | 283 700€ Prix foncier 19 600€ Prix travaux 264 100€ | Voir |
| Voir | Disponible | 255 200€ | D04 | Appt. | Studio | 28.5m2 | 0-RDC | Disponible | 255 200€ Prix foncier 17 600€ Prix travaux 237 600€ | Voir |
| Voir | Disponible | 276 700€ | D13 | Appt. | Studio | 30.9m2 | 1er | Disponible | 276 700€ Prix foncier 19 100€ Prix travaux 257 600€ | Voir |
| Voir | Disponible | 270 400€ | D14 | Appt. | Studio | 30.2m2 | 1er | Disponible | 270 400€ Prix foncier 18 700€ Prix travaux 251 700€ | Voir |
| Voir | Disponible | 278 200€ | D23 | Appt. | Studio | 31.9m2 | 2ème | Disponible | 278 200€ Prix foncier 19 200€ Prix travaux 259 000€ | Voir |
| Voir | Disponible | 275 700€ | D24 | Appt. | Studio | 30.8m2 | 2ème | Disponible | 275 700€ Prix foncier 19 000€ Prix travaux 256 700€ | Voir |
| Voir | Disponible | 285 200€ | A07 | Appt. | Studio | 33.2m2 | 0-RDC | Disponible | 285 200€ Prix foncier 19 700€ Prix travaux 265 500€ | Voir |
| Voir | Disponible | 311 800€ | D31 | Appt. | Studio | 35.7m2 | 3ème | Disponible | 311 800€ Prix foncier 21 500€ Prix travaux 290 300€ | Voir |
| Voir | Optionné | 315 700€ | D32 | Appt. | Studio | 37m2 | 3ème | Optionné Mais pas encore vendu 😉 | 315 700€ Prix foncier 21 800€ Prix travaux 293 900€ | Voir |
| Voir | Disponible | 266 800€ | E03 | Appt. | Studio | 29.8m2 | 0-RDC | Disponible | 266 800€ Prix foncier 18 400€ Prix travaux 248 400€ | Voir |
| Voir | Disponible | 315 600€ | E04 | Appt. | Studio | 38.6m2 | 0-RDC | Disponible | 315 600€ Prix foncier 21 800€ Prix travaux 293 800€ | Voir |
| Voir | Disponible | 318 800€ | E05 | Appt. | Studio | 39m2 | 0-RDC | Disponible | 318 800€ Prix foncier 22 000€ Prix travaux 296 800€ | Voir |
| Voir | Disponible | 286 900€ | A08 | Appt. | Studio | 33.4m2 | 0-RDC | Disponible | 286 900€ Prix foncier 19 800€ Prix travaux 267 100€ | Voir |
| Voir | Disponible | 295 500€ | E12 | Appt. | Studio | 34.5m2 | 1er | Disponible | 295 500€ Prix foncier 20 400€ Prix travaux 275 100€ | Voir |
| Voir | Disponible | 280 900€ | E14 | Appt. | Studio | 32.8m2 | 1er | Disponible | 280 900€ Prix foncier 19 400€ Prix travaux 261 500€ | Voir |
| Voir | Disponible | 298 100€ | E22 | Appt. | Studio | 34.8m2 | 2ème | Disponible | 298 100€ Prix foncier 20 600€ Prix travaux 277 500€ | Voir |
| Voir | Disponible | 294 600€ | E24 | Appt. | Studio | 34.4m2 | 2ème | Disponible | 294 600€ Prix foncier 20 300€ Prix travaux 274 300€ | Voir |
| Voir | Optionné | 276 300€ | E25 | Appt. | Studio | 30.4m2 | 2ème | Optionné Mais pas encore vendu 😉 | 276 300€ Prix foncier 19 100€ Prix travaux 257 200€ | Voir |
| Voir | Disponible | 256 800€ | E34 | Appt. | Studio | 28.6m2 | 3ème | Disponible | 256 800€ Prix foncier 17 700€ Prix travaux 239 100€ | Voir |
| Voir | Disponible | 299 600€ | E36 | Appt. | Studio | 36.5m2 | 3ème | Disponible | 299 600€ Prix foncier 20 700€ Prix travaux 278 900€ | Voir |
| Voir | Disponible | 297 100€ | E37 | Appt. | Studio | 36.2m2 | 3ème | Disponible | 297 100€ Prix foncier 20 500€ Prix travaux 276 600€ | Voir |
| Voir | Disponible | 278 200€ | E39 | Appt. | Studio | 32.4m2 | 3ème | Disponible | 278 200€ Prix foncier 19 200€ Prix travaux 259 000€ | Voir |
| Voir | Disponible | 271 300€ | F01 | Appt. | Studio | 30.3m2 | 0-RDC | Disponible | 271 300€ Prix foncier 18 700€ Prix travaux 252 600€ | Voir |