Ce lot n’est plus disponible chez VIANOVA ou est vendu.
Vous pouvez revenir dans 24h pour vérifier le stock à jour ou contacter un conseiller Vianova pour vérifier le stock en direct.
Vous pouvez également continuer votre recherche sur notre site « ici ».
111 100€
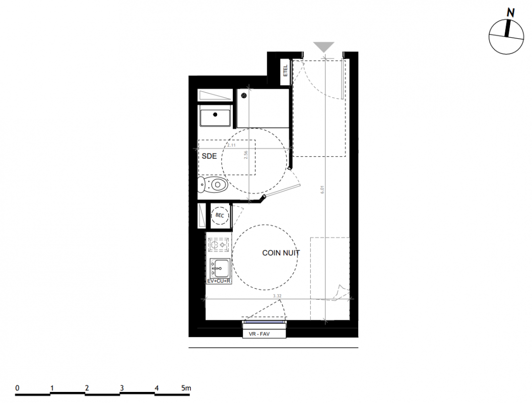
Appt. au 1er
Studio
17.95 m²
Sud
Angers (49000)
4ème trimestre 2028
01 81 80 39 10
Présentation du programme "EPURE - QUARTIER MONTAIGNE"
A seulement 1h30 de Paris, Angers séduit par sa qualité de vie, son attractivité économique et universitaire.
Idéalement située Rue Joseph Cussonneau, votre nouvelle résidence Vinci Immobilier s’inscrit au cœur du Quartier Montaigne, nouveau lieu de vie parfaitement connecté à la métropole, apprécié pour sa proximité avec le centre-ville, les transports, les écoles et les pôles d'activités.
La résidence propose des appartements du Studio au 4 pièces dotés de prestations soignées et de beaux espaces extérieurs. Des stationnements privatifs et des locaux vélos complètent les prestations.
À seulement 3 min à pied, l’arrêt de tramway Montaigne permet de rejoindre rapidement le centre-ville d’Angers et la gare SNCF Angers Saint-Laud en moins de 10 min. Le quartier est particulièrement recherché pour sa proximité immédiate avec les écoles, dont le collège Montaigne, accessible en moins de 5 min à pied, ainsi que les pôles universitaires facilement desservis en tramway et à vélo.
À proximité immédiate des commerces, des équipements sportifs et du centre commercial Espace Anjou, ce nouveau programme bénéficie également d’un accès rapide aux grands axes routiers A87/A11. Les cheminements piétons et pistes cyclables environnants favorisent les mobilités douces et un quotidien serein.
Autres logements Studio du programme "EPURE - QUARTIER MONTAIGNE"
| Disponibilité | Prix | No | Genre | Pièces | Surface | Étage | Disponibilité | Prix | ||
|---|---|---|---|---|---|---|---|---|---|---|
| Voir | Disponible | 115 500€ | A001 | Appt. | Studio | 19.02m2 | 0-RDC | Disponible | 115 500€ | Voir |
| Voir | Disponible | 159 700€ | A004 | Appt. | Studio | 28.67m2 | 0-RDC | Disponible | 159 700€ | Voir |
| Voir | Optionné | 117 500€ | A101 | Appt. | Studio | 19.02m2 | 1er | Optionné Mais pas encore vendu 😉 | 117 500€ | Voir |
| Voir | Optionné | 119 500€ | A201 | Appt. | Studio | 19.02m2 | 2ème | Optionné Mais pas encore vendu 😉 | 119 500€ | Voir |
| Voir | Disponible | 164 300€ | B004 | Appt. | Studio | 27.51m2 | 0-RDC | Disponible | 164 300€ | Voir |
| Voir | Disponible | 191 600€ | B005 | Appt. | Studio | 36.53m2 | 0-RDC | Disponible | 191 600€ | Voir |
| Voir | Disponible | 173 500€ | B006 | Appt. | Studio | 29.18m2 | 0-RDC | Disponible | 173 500€ | Voir |