Prix
143 500€
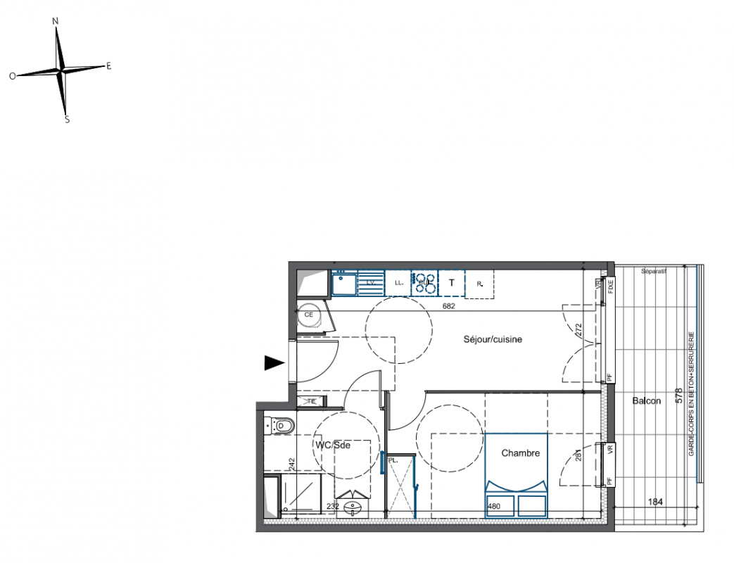
Type
Appt. au 4ème
Pièces
T2
Surface
38.12 m²
Exposition
-
Ville
Cavaillon (84300)
Livraison
2ème trimestre 2026
Informations
01 81 80 39 10

Présentation du programme "Le Mérimé"

LIVRAISON IMMINENTE
FRAIS DE NOTAIRES OFFERTS
Honoraires 5% HT sur le TTC
VIsites possibles
appartement témoin.
Maquette Orbitale disponible dans média
les acquéreurs auront jusqu'en juin 2025 pour finaliser leurs choix de personnalisation (carrelage, faïence).

Autres logements T2 du programme "Le Mérimé"

Disponibilité Prix Genre Pièces Surface Étage
Voir
Disponible
149 000€ Appt. T2 41.93m2 2ème
Voir
Disponible
157 100€ Appt. T2 41.93m2 3ème
DO NOT CLICK