Prix
870 000€
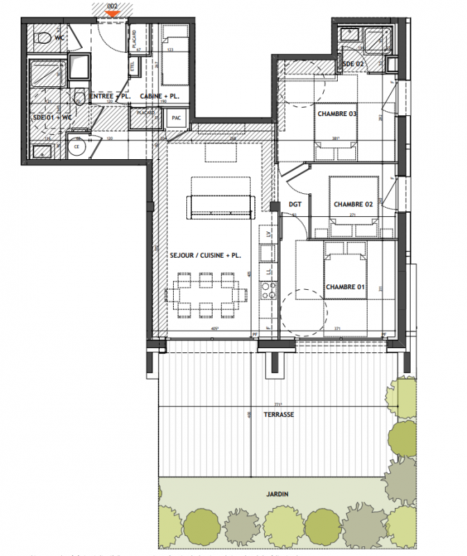
Type
Appt. au 0-RDC
Pièces
T4
Surface
81 m²
Exposition
-
Ville
Combloux (74920)
Livraison
2ème trimestre 2027
Informations
01 81 80 39 10

Présentation du programme "Au Cœur des Prés"

[JUSQU'A 25 000 EUROS DE REMISE* + FRAIS DE NOTAIRE OFFERTS* ]
CHALETS et APPARTEMENTS DISPONIBLES
Nouvelle résidence au coeur d'un environnement naturel idyllique, à 2min du centre historique de Combloux et à 10min de Megève. Hôtel AU COEUR DES PRÉS réhabilité (résidence touristique) en appartements neufs (dont certains duplex) et en chalets. Vues exceptionnelles sur le Mont-Blanc et les montagnes environnantes. Prestations haut de gamme : spa, hammam, bassin de nage. Prix communiqués AVEC espace extérieur (balcon ou terrasse), casier à ski, cave et stationnement. INSCRIVEZ VOUS et visitez votre futur appartement à la montagne. Appels gratuits au 0800 800 874

Autres logements T4 du programme "Au Cœur des Prés"

Pas de logements disponibles
DO NOT CLICK