189 300€ (TVA 20%)
166 426€ (TVA 5.5%)
Appt. au 1er
T2
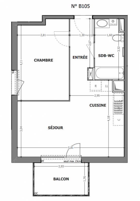
41.82 m²
Est
Givors (69700)
1er trimestre 2028
01 81 80 39 10
Présentation du programme "Programme neuf Givors (69700)"
NOUVEAU à GIVORS ! Soyez parmi les premiers à choisir votre appartement neuf dans un quartier pavillonnaire ! Et en plus, devenez propriétaire pour le même prix que votre loyer grâce à la TVA réduite à 5,5% !Au sud de la métropole de Lyon dans la commune de Givors, cette nouvelle résidence composée de 2 petits bâtiments de seulement 4 étages vous offre un cadre de vie agréable et serein. Les appartements se déclinent du 2 au 4 pièces et s'ouvrent tous sur un bel espace extérieur de type loggia, balcon ou jardin privatif et se tournent, pour certains, vers le jardin paysagé de la résidence.Situé dans un quartier pavillonnaire, votre quotidien se voit facilité : face au bus de la ligne 80, tout proche des établissements scolaires, de la maternelle au lycée, d'un équipement sportif et du centre hospitalier et enfin, à 4 min. en voiture d'une moyenne surface. La gare de Givors se trouve à 5 min en voiture de la résidence et permet de rejoindre Lyon en 20 min.Contactez-vite un de nos conseillers pour être parmi les premiers à choisir votre appartement neuf à GIVORS !
Autres logements T2 du programme "Programme neuf Givors (69700)"
| Disponibilité | Prix | No | Genre | Pièces | Surface | Étage | Disponibilité | Prix | ||
|---|---|---|---|---|---|---|---|---|---|---|
| Voir | Disponible | 198 900€ | A003 | Appt. | T2 | 42.47m2 | 0-RDC | Disponible | 198 900€ | Voir |
| Voir | Disponible | 193 000€ | A104 | Appt. | T2 | 43.27m2 | 1er | Disponible | 193 000€ | Voir |
| Voir | Disponible | 196 500€ | A204 | Appt. | T2 | 43.27m2 | 2ème | Disponible | 196 500€ | Voir |
| Voir | Disponible | 200 000€ | A304 | Appt. | T2 | 43.27m2 | 3ème | Disponible | 200 000€ | Voir |
| Voir | Disponible | 203 500€ | A404 | Appt. | T2 | 43.27m2 | 4ème | Disponible | 203 500€ | Voir |
| Voir | Disponible | 193 000€ | B003 | Appt. | T2 | 41.87m2 | 0-RDC | Disponible | 193 000€ | Voir |
| Voir | Disponible | 188 200€ | B004 | Appt. | T2 | 41.82m2 | 0-RDC | Disponible | 188 200€ | Voir |
| Voir | Disponible | 195 200€ | B101 | Appt. | T2 | 41.99m2 | 1er | Disponible | 195 200€ | Voir |
| Voir | Disponible | 195 200€ | B104 | Appt. | T2 | 42.91m2 | 1er | Disponible | 195 200€ | Voir |
| Voir | Disponible | 198 900€ | B201 | Appt. | T2 | 41.99m2 | 2ème | Disponible | 198 900€ | Voir |
| Voir | Disponible | 169 100€ | B203 | Appt. | T2 | 41.87m2 | 2ème | Disponible | 169 100€ | Voir |
| Voir | Disponible | 205 900€ | B204 | Appt. | T2 | 42.91m2 | 2ème | Disponible | 205 900€ | Voir |
| Voir | Disponible | 193 000€ | B205 | Appt. | T2 | 41.82m2 | 2ème | Disponible | 193 000€ | Voir |
| Voir | Disponible | 202 400€ | B301 | Appt. | T2 | 41.99m2 | 3ème | Disponible | 202 400€ | Voir |
| Voir | Disponible | 203 500€ | B304 | Appt. | T2 | 41.82m2 | 3ème | Disponible | 203 500€ | Voir |
| Voir | Disponible | 204 800€ | B401 | Appt. | T2 | 41.99m2 | 4ème | Disponible | 204 800€ | Voir |
| Voir | Disponible | 207 100€ | B404 | Appt. | T2 | 41.82m2 | 4ème | Disponible | 207 100€ | Voir |