Ce lot n’est plus disponible chez VIANOVA ou est vendu.
Vous pouvez revenir dans 24h pour vérifier le stock à jour ou contacter un conseiller Vianova pour vérifier le stock en direct.
Vous pouvez également continuer votre recherche sur notre site « ici ».
161 941€
Appt. au 5ème
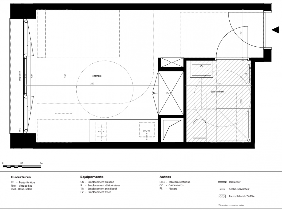
Studio
20 m²
-
Orsay (91400)
3ème trimestre 2028
01 81 80 39 10
Présentation du programme "STUDENT FACTORY PARIS SACLAY"
[IDEAL INVESTISSEUR] Résidence Etudiants à ORSAY (91). Bénéficiez d'une fiscalité avantageuse avec le statut LMNP (Loueur Meublé Non Professionnel), dont le statut vous permet de bénéficier de nombreux avantages fiscaux. Les revenus d’une location meublée bénéficient d’abattements et de déductions plus importants que les revenus perçus sur un logement loué nu. Des revenus quasi sans impôt pendant plus de 10 ans.
La future résidence STUDENT FACTORY offre un cadre de vie exceptionnel aux étudiants : des appartements confortables entièrement équipés et « prêts à vivre », des espaces communs adaptés aux études avec de nombreux services, ainsi qu'un emplacement de choix.
À seulement 23 kilomètres de la porte de Saint-Cloud, Orsay se distingue comme le cœur du plateau de Saclay, un véritable foyer d’innovation à la française. L’Université Paris-Saclay, classée n°1 en Europe et dans le Top 20 mondial pour les sciences, attire étudiants et chercheurs du monde entier.
Le territoire accueille également de grandes écoles prestigieuses : Polytech Paris-Saclay, ENSAE, ENSTA, CentraleSupélec, AgroParisTech, contribuant au rayonnement international de ce pôle d’excellence.
La gare RER Le Guichet, à proximité immédiate, permet de rejoindre le centre de Paris en moins de 40 minutes. En 2026, la ligne 18 du Grand Paris Express desservira les gares Université Paris-Saclay et Polytechnique, à proximité de la résidence. Contactez-nous dés à présent pour plus d’informations sur le statut LMNP et sur cette résidence 0800 124 124 ...
Autres logements Studio du programme "STUDENT FACTORY PARIS SACLAY"
| Disponibilité | Prix | No | Genre | Pièces | Surface | Étage | Disponibilité | Prix | ||
|---|---|---|---|---|---|---|---|---|---|---|
| Voir | Archivé | 143 101€ | LA101 | Appt. | Studio | 18.1m2 | 1er | Archivé | 143 101€ | Voir |
| Voir | Archivé | 142 261€ | LA102 | Appt. | Studio | 18m2 | 1er | Archivé | 142 261€ | Voir |
| Voir | Archivé | 141 301€ | LA103 | Appt. | Studio | 17.7m2 | 1er | Archivé Mais pas encore vendu 😉 | 141 301€ | Voir |
| Voir | Archivé | 142 141€ | LA104 | Appt. | Studio | 17.8m2 | 1er | Archivé Mais pas encore vendu 😉 | 142 141€ | Voir |
| Voir | Archivé | 142 621€ | LA108 | Appt. | Studio | 17.9m2 | 1er | Archivé | 142 621€ | Voir |
| Voir | Archivé | 142 621€ | LA109 | Appt. | Studio | 17.9m2 | 1er | Archivé | 142 621€ | Voir |
| Voir | Archivé | 159 541€ | LA110 | Appt. | Studio | 20m2 | 1er | Archivé | 159 541€ | Voir |
| Voir | Archivé | 142 621€ | LA111 | Appt. | Studio | 17.9m2 | 1er | Archivé | 142 621€ | Voir |
| Voir | Archivé | 142 621€ | LA112 | Appt. | Studio | 17.9m2 | 1er | Archivé | 142 621€ | Voir |
| Voir | Archivé | 142 621€ | LA113 | Appt. | Studio | 17.9m2 | 1er | Archivé | 142 621€ | Voir |
| Voir | Archivé | 142 621€ | LA114 | Appt. | Studio | 17.9m2 | 1er | Archivé | 142 621€ | Voir |
| Voir | Archivé | 142 261€ | LA117 | Appt. | Studio | 18m2 | 1er | Archivé | 142 261€ | Voir |
| Voir | Archivé | 142 261€ | LA118 | Appt. | Studio | 18m2 | 1er | Archivé | 142 261€ | Voir |
| Voir | Archivé | 142 261€ | LA119 | Appt. | Studio | 18m2 | 1er | Archivé | 142 261€ | Voir |
| Voir | Archivé | 141 901€ | LA203 | Appt. | Studio | 17.7m2 | 2ème | Archivé Mais pas encore vendu 😉 | 141 901€ | Voir |
| Voir | Archivé | 142 741€ | LA204 | Appt. | Studio | 17.8m2 | 2ème | Archivé | 142 741€ | Voir |
| Voir | Archivé | 141 901€ | LA205 | Appt. | Studio | 17.7m2 | 2ème | Archivé Mais pas encore vendu 😉 | 141 901€ | Voir |
| Voir | Archivé | 142 741€ | LA206 | Appt. | Studio | 17.8m2 | 2ème | Archivé | 142 741€ | Voir |
| Voir | Archivé | 143 221€ | LA208 | Appt. | Studio | 17.9m2 | 2ème | Archivé | 143 221€ | Voir |
| Voir | Archivé | 143 221€ | LA209 | Appt. | Studio | 17.9m2 | 2ème | Archivé | 143 221€ | Voir |
| Voir | Archivé | 160 141€ | LA210 | Appt. | Studio | 20m2 | 2ème | Archivé | 160 141€ | Voir |
| Voir | Archivé | 143 221€ | LA211 | Appt. | Studio | 17.9m2 | 2ème | Archivé | 143 221€ | Voir |
| Voir | Archivé | 143 221€ | LA212 | Appt. | Studio | 17.9m2 | 2ème | Archivé | 143 221€ | Voir |
| Voir | Archivé | 143 221€ | LA213 | Appt. | Studio | 17.9m2 | 2ème | Archivé | 143 221€ | Voir |
| Voir | Archivé | 143 221€ | LA214 | Appt. | Studio | 17.9m2 | 2ème | Archivé | 143 221€ | Voir |
| Voir | Archivé | 142 501€ | LA215 | Appt. | Studio | 17.8m2 | 2ème | Archivé | 142 501€ | Voir |
| Voir | Archivé | 142 021€ | LA216 | Appt. | Studio | 17.9m2 | 2ème | Archivé | 142 021€ | Voir |
| Voir | Archivé | 142 861€ | LA217 | Appt. | Studio | 18m2 | 2ème | Archivé | 142 861€ | Voir |
| Voir | Archivé | 142 861€ | LA218 | Appt. | Studio | 18m2 | 2ème | Archivé | 142 861€ | Voir |
| Voir | Archivé | 142 861€ | LA219 | Appt. | Studio | 18m2 | 2ème | Archivé | 142 861€ | Voir |
| Voir | Archivé | 143 701€ | LA220 | Appt. | Studio | 18.1m2 | 2ème | Archivé | 143 701€ | Voir |
| Voir | Archivé | 144 301€ | LA301 | Appt. | Studio | 18.1m2 | 3ème | Archivé | 144 301€ | Voir |
| Voir | Archivé | 143 461€ | LA302 | Appt. | Studio | 18m2 | 3ème | Archivé | 143 461€ | Voir |
| Voir | Archivé | 142 501€ | LA303 | Appt. | Studio | 17.7m2 | 3ème | Archivé | 142 501€ | Voir |
| Voir | Archivé | 143 341€ | LA304 | Appt. | Studio | 17.8m2 | 3ème | Archivé | 143 341€ | Voir |
| Voir | Archivé | 143 341€ | LA306 | Appt. | Studio | 17.8m2 | 3ème | Archivé | 143 341€ | Voir |
| Voir | Archivé | 141 661€ | LA307 | Appt. | Studio | 17.6m2 | 3ème | Archivé Mais pas encore vendu 😉 | 141 661€ | Voir |
| Voir | Archivé | 143 821€ | LA308 | Appt. | Studio | 17.9m2 | 3ème | Archivé | 143 821€ | Voir |
| Voir | Archivé | 143 821€ | LA309 | Appt. | Studio | 17.9m2 | 3ème | Archivé | 143 821€ | Voir |
| Voir | Archivé | 160 741€ | LA310 | Appt. | Studio | 20m2 | 3ème | Archivé | 160 741€ | Voir |
| Voir | Archivé | 143 821€ | LA311 | Appt. | Studio | 17.9m2 | 3ème | Archivé | 143 821€ | Voir |
| Voir | Archivé | 143 821€ | LA312 | Appt. | Studio | 17.9m2 | 3ème | Archivé | 143 821€ | Voir |
| Voir | Archivé | 143 821€ | LA313 | Appt. | Studio | 17.9m2 | 3ème | Archivé | 143 821€ | Voir |
| Voir | Archivé | 143 821€ | LA314 | Appt. | Studio | 17.9m2 | 3ème | Archivé | 143 821€ | Voir |
| Voir | Archivé | 143 101€ | LA315 | Appt. | Studio | 17.8m2 | 3ème | Archivé | 143 101€ | Voir |
| Voir | Archivé | 142 621€ | LA316 | Appt. | Studio | 17.9m2 | 3ème | Archivé | 142 621€ | Voir |
| Voir | Archivé | 143 461€ | LA317 | Appt. | Studio | 18m2 | 3ème | Archivé | 143 461€ | Voir |
| Voir | Archivé | 143 461€ | LA318 | Appt. | Studio | 18m2 | 3ème | Archivé | 143 461€ | Voir |
| Voir | Archivé | 144 661€ | LA319 | Appt. | Studio | 18m2 | 3ème | Archivé | 144 661€ | Voir |
| Voir | Archivé | 144 301€ | LA320 | Appt. | Studio | 18.1m2 | 3ème | Archivé | 144 301€ | Voir |
| Voir | Archivé | 144 901€ | LA401 | Appt. | Studio | 18.1m2 | 4ème | Archivé | 144 901€ | Voir |
| Voir | Archivé | 144 061€ | LA402 | Appt. | Studio | 18m2 | 4ème | Archivé | 144 061€ | Voir |
| Voir | Archivé | 143 101€ | LA403 | Appt. | Studio | 17.7m2 | 4ème | Archivé | 143 101€ | Voir |
| Voir | Archivé | 143 941€ | LA404 | Appt. | Studio | 17.8m2 | 4ème | Archivé | 143 941€ | Voir |
| Voir | Archivé | 143 101€ | LA405 | Appt. | Studio | 17.7m2 | 4ème | Archivé | 143 101€ | Voir |
| Voir | Archivé | 143 941€ | LA406 | Appt. | Studio | 17.8m2 | 4ème | Archivé | 143 941€ | Voir |
| Voir | Archivé | 144 421€ | LA408 | Appt. | Studio | 17.9m2 | 4ème | Archivé | 144 421€ | Voir |
| Voir | Archivé | 144 421€ | LA409 | Appt. | Studio | 17.9m2 | 4ème | Archivé | 144 421€ | Voir |
| Voir | Archivé | 161 341€ | LA410 | Appt. | Studio | 20m2 | 4ème | Archivé Mais pas encore vendu 😉 | 161 341€ | Voir |
| Voir | Archivé | 144 421€ | LA411 | Appt. | Studio | 17.9m2 | 4ème | Archivé | 144 421€ | Voir |
| Voir | Archivé | 144 421€ | LA412 | Appt. | Studio | 17.9m2 | 4ème | Archivé | 144 421€ | Voir |
| Voir | Archivé | 144 421€ | LA413 | Appt. | Studio | 17.9m2 | 4ème | Archivé | 144 421€ | Voir |
| Voir | Archivé | 144 421€ | LA414 | Appt. | Studio | 17.9m2 | 4ème | Archivé | 144 421€ | Voir |
| Voir | Archivé | 143 701€ | LA415 | Appt. | Studio | 17.8m2 | 4ème | Archivé | 143 701€ | Voir |
| Voir | Archivé | 143 221€ | LA416 | Appt. | Studio | 17.9m2 | 4ème | Archivé | 143 221€ | Voir |
| Voir | Archivé | 144 061€ | LA417 | Appt. | Studio | 18m2 | 4ème | Archivé | 144 061€ | Voir |
| Voir | Archivé | 144 061€ | LA418 | Appt. | Studio | 18m2 | 4ème | Archivé | 144 061€ | Voir |
| Voir | Archivé | 144 061€ | LA419 | Appt. | Studio | 18m2 | 4ème | Archivé | 144 061€ | Voir |
| Voir | Archivé | 144 901€ | LA420 | Appt. | Studio | 18.1m2 | 4ème | Archivé | 144 901€ | Voir |
| Voir | Archivé | 145 501€ | LA501 | Appt. | Studio | 18.1m2 | 5ème | Archivé | 145 501€ | Voir |
| Voir | Archivé | 144 661€ | LA502 | Appt. | Studio | 18m2 | 5ème | Archivé Mais pas encore vendu 😉 | 144 661€ | Voir |
| Voir | Archivé | 143 701€ | LA503 | Appt. | Studio | 17.7m2 | 5ème | Archivé | 143 701€ | Voir |
| Voir | Archivé | 144 541€ | LA504 | Appt. | Studio | 17.8m2 | 5ème | Archivé | 144 541€ | Voir |
| Voir | Archivé | 143 701€ | LA505 | Appt. | Studio | 17.7m2 | 5ème | Archivé Mais pas encore vendu 😉 | 143 701€ | Voir |
| Voir | Archivé | 144 541€ | LA506 | Appt. | Studio | 17.8m2 | 5ème | Archivé | 144 541€ | Voir |
| Voir | Archivé | 145 021€ | LA508 | Appt. | Studio | 17.9m2 | 5ème | Archivé | 145 021€ | Voir |
| Voir | Archivé | 145 021€ | LA509 | Appt. | Studio | 17.9m2 | 5ème | Archivé | 145 021€ | Voir |
| Voir | Archivé | 145 021€ | LA511 | Appt. | Studio | 17.9m2 | 5ème | Archivé | 145 021€ | Voir |
| Voir | Archivé | 145 021€ | LA512 | Appt. | Studio | 17.9m2 | 5ème | Archivé | 145 021€ | Voir |
| Voir | Archivé | 145 021€ | LA513 | Appt. | Studio | 17.9m2 | 5ème | Archivé | 145 021€ | Voir |
| Voir | Archivé | 145 021€ | LA514 | Appt. | Studio | 17.9m2 | 5ème | Archivé | 145 021€ | Voir |
| Voir | Archivé | 144 301€ | LA515 | Appt. | Studio | 17.8m2 | 5ème | Archivé | 144 301€ | Voir |
| Voir | Archivé | 143 821€ | LA516 | Appt. | Studio | 17.9m2 | 5ème | Archivé | 143 821€ | Voir |
| Voir | Archivé | 144 661€ | LA517 | Appt. | Studio | 18m2 | 5ème | Archivé | 144 661€ | Voir |
| Voir | Archivé | 144 661€ | LA518 | Appt. | Studio | 18m2 | 5ème | Archivé | 144 661€ | Voir |
| Voir | Archivé | 144 661€ | LA519 | Appt. | Studio | 18m2 | 5ème | Archivé Mais pas encore vendu 😉 | 144 661€ | Voir |
| Voir | Archivé | 145 501€ | LA520 | Appt. | Studio | 18.1m2 | 5ème | Archivé | 145 501€ | Voir |
| Voir | Archivé | 142 861€ | LA202 | Appt. | Studio | 18m2 | 2ème | Archivé | 142 861€ | Voir |