Ce lot n’est plus disponible chez VIANOVA ou est vendu.

Vous pouvez revenir dans 24h pour vérifier le stock à jour ou contacter un conseiller Vianova pour vérifier le stock en direct.
Vous pouvez également continuer votre recherche sur notre site « ici ».

Prix
175 300€
Type
Appt. au 2ème
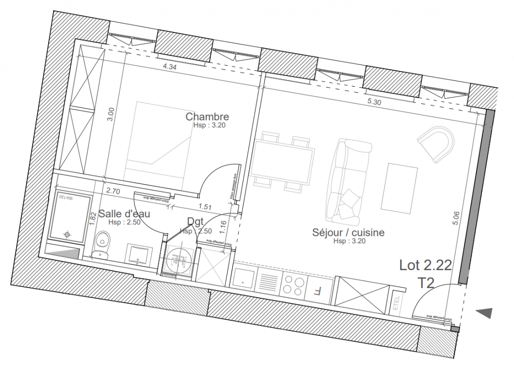
Pièces
T2
Surface
39.29 m²
Exposition
Nord
Ville
Provins (77160)
Livraison
1er trimestre 2024
Informations
01 81 80 39 10

Présentation du programme "Provins - Le Vitis (rc)"

Vous souhaitez y habiter ? Vérifiez votre éligibilité au PTZ avec nos équipes ! Habiter ou investir à Provins, dans le département de la Seine-et-Marne à 1H30 de ParisÀ mi-chemin entre les pôles dynamiques de Marne-La-Vallée et de Melun-Val-de-Seine, la ville est à la fois au cœur de beaux espaces naturels et proche de grands pôles économiques.La cité médiévale de Provins est classée au patrimoine mondial de l’UNESCO depuis 2001.Provins, une ville calme et verdoyante dynamisée par de nombreuses activités et animationsElle abrite plus de 12 000 habitants et dispose de divers services et infrastructures de commerce, d’éducation, de sport, de culture et de santé.Le centre-ville a su garder son esprit convivial et animé, réunissant de nombreux commerces, services et un marché couvert dans un cadre historique préservé.Focus prestations/résidenceUne résidence à l’architecture contemporaine de caractère répartie sur 3 bâtiments de 2 étages. Elle dispose de parkings extérieurs et d’un local à vélos.Tous les appartements (du 2 au 4 pièces) sont pensés pour privilégier la lumière. Ils sont prolongés par un balcon, une terrasse ou un jardin. Commodités et transportsUn emplacement idéal, à 10 minutes à pied du centre-ville et à 270 m de la gare RER et routière. Grâce à la ligne P du transilien, Paris-Est est à 1h30.Tous les établissements scolaires (de la maternelle au lycée), se trouvent à moins de 6 minutes en voiture. Le + du programmeUne résidence au cœur d’un village, dans un cadre de vie calme et préservé tout en bénéficiant de tous les accès pour rejoindre la capitale.

Autres logements T2 du programme "Provins - Le Vitis (rc)"

Pas de logements disponibles