321 270€ (TVA 20%)
282 450€ (TVA 5.5%)
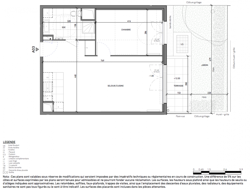
Appt. au 0-RDC
-
46.46 m²
-
Neuilly-Plaisance (93360)
4ème trimestre 2025
01 81 80 39 10
Présentation du programme "DOMAINE 14"
Alors que Paris ne se trouve qu'à une dizaine de kilomètres, Neuilly-Plaisance a gardé intacte son âme de village. Lovée sur les bords de Marne dans un environnement naturel d'exception elle propose à ses habitants un art de vivre chaleureux et serein. La ville, facile d'accès (RER A, Autoroutes A 86, A3 et A4) a su également développer une économie dynamique sans perdre de son charme. Ainsi, au quotidien, les Nocéens peuvent profiter de ses nombreux atouts : commerces, grand centre commercial, marché de produits frais, écoles de qualité, piscine, stades, gymnases. Son offre culturelle innovante et conviviale participe à l'attractivité de cette ville recherchée où il fait bon vivre. À quelques pas du centre-ville, de la place du marché, des écoles, de la maternelle au lycée et de nombreux commerces, nous vous invitons à découvrir une nouvelle réalisation intimiste à l'architecture classique élégante. Dans un quartier résidentiel, au coeur d'un domaine arboré, elle propose des appartements, du studio au 5 pièces, prolongés par des balcons et des terrasses, dont certaines plein ciel, ainsi que 5 maisons ouvertes sur des jardins privatifs. Des places de stationnement et des prestations de qualité confortent le sentiment de bien-être de cette résidence entièrement sécurisée. Prix indiqué remisé TVA 5,5%.
Autres logements - du programme "DOMAINE 14"
| Disponibilité | Prix | No | Genre | Pièces | Surface | Étage | Disponibilité | Prix | ||
|---|---|---|---|---|---|---|---|---|---|---|
| Voir | Disponible | 560 645€ | A02 | Appt. | - | 87.66m2 | 0-RDC | Disponible | 560 645€ | Voir |
| Voir | Disponible | 584 332€ | C11 | Appt. | - | 89.89m2 | 1er | Disponible | 584 332€ | Voir |
| Voir | Disponible | 659 602€ | M01 | Appt. | - | 106.2m2 | 0-RDC | Disponible | 659 602€ | Voir |
| Voir | Disponible | 659 602€ | M03 | Appt. | - | 108.05m2 | 0-RDC | Disponible | 659 602€ | Voir |
| Voir | Disponible | 313 308€ | B02 | Appt. | - | 47.93m2 | 0-RDC | Disponible | 313 308€ | Voir |