Ce lot n’est plus disponible chez VIANOVA ou est vendu.

Vous pouvez revenir dans 24h pour vérifier le stock à jour ou contacter un conseiller Vianova pour vérifier le stock en direct.
Vous pouvez également continuer votre recherche sur notre site « ici ».

Prix
319 000€  (TVA 20%)
292 417€  (TVA 10%)
Type
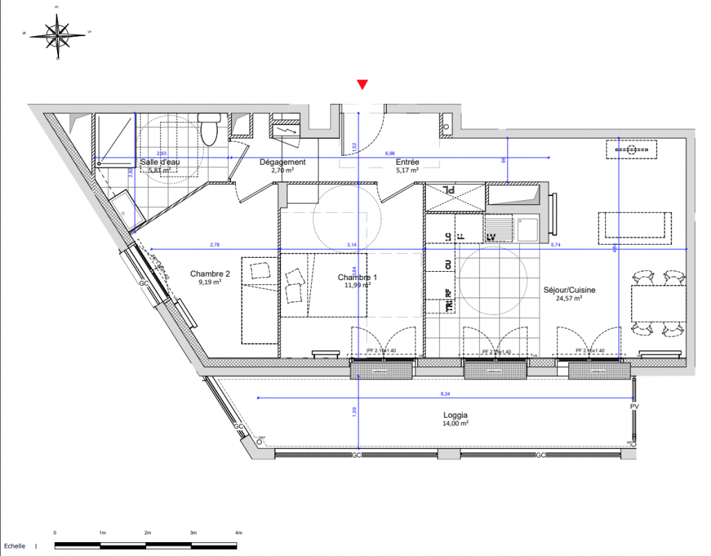
Appt. au 3ème
Pièces
T3
Surface
59.43 m²
Exposition
-
Ville
Chevilly-Larue (94550)
Livraison
4ème trimestre 2028
Informations
01 81 80 39 10

Présentation du programme "Horizon"

Autres logements T3 du programme "Horizon"

Disponibilité Prix Genre Pièces Surface Étage
Voir
Disponible
349 000€ Appt. T3 63.61m2 4ème
DO NOT CLICK