Prix
Type
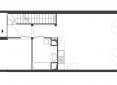
Maison au 0-RDC
Pièces
T5
Surface
102.03 m²
Exposition
Nord-Est
Ville
Ivry-sur-Seine (94200)
Livraison
2ème trimestre 2028
Informations
01 81 80 39 10

Présentation du programme "Ivry Confluences 2"

C'est un quartier de nouvelle génération très en vue qui accueille le programme immobilier neuf Vianova : Ivry Confluences. Ici, vous bénéficiez d'accès rapides sur le boulevard périphérique, l'A4 et l'A86, de la proximité du RER C, de l'arrivée imminente du TZen 5* et prolongement de la ligne 10 du métro en cours d'étude. Ce programme RE 2020 s'anime d'un agréable jardin de contemplation en coeur d'îlot et d'une terrasse commune avec potager partagé.* Horizon 2025. Source : ivry94.fr

Autres logements T5 du programme "Ivry Confluences 2"

Disponibilité Prix Genre Pièces Surface Étage
Voir
Disponible
Maison T5 102.13m2 0-RDC
Voir
Disponible
Maison T5 102.13m2 0-RDC