490 000€ (TVA 20%)
449 167€ (TVA 10%)
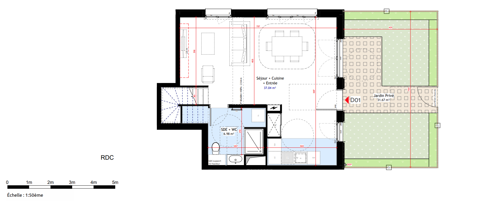
Appt. au 0-RDC
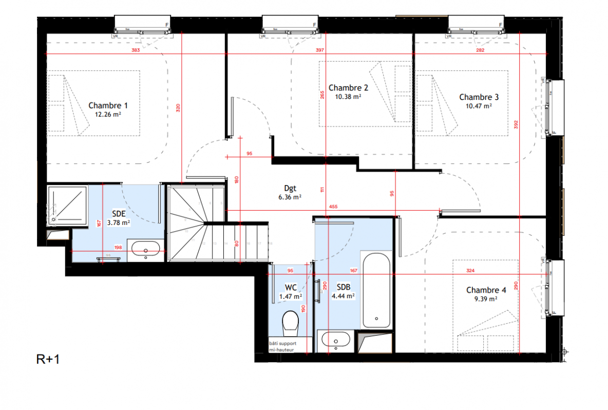
T5
102.57 m²
-
Orly (94310)
2ème trimestre 2028
01 81 80 39 10
Présentation du programme "Mésange"
Nouvelle résidence Mésange à Orly signée Sogeprom - Quartier Parcs en Scène
Dans la poursuite du succès commercial des résidences Barbara et Equilibre à Orly, découvrez la nouvelle résidence MESANGE, située dans le même quartier dynamique Parcs en Scène, alliant confort, durabilité et cadre de vie privilégié.
Cette nouvelle opération propose des appartements du studio au 5 pièces, pour un quotidien facilité. Chaque logement a été pensé pour répondre aux attentes de tous les styles de vie, que vous soyez investisseur ou à la recherche de votre résidence principale.
Au coeur de la résidence, profitez d'un jardin paysager convivial, véritable lieu de vie et de détente, accessible à tous les résidents.
Les + du programme :
- cadre de vie agréable
- proximité du métro 14 et du RER C
- Conforme à la RE2020 seuil 2025 : performances énergétiques avancées pour un confort optimal et des économies d'énergie.
- Labellisé BiodiverCity® : un projet respectueux de la biodiversité et de l'environnement.
Une localisation idéale dans un quartier en plein renouveau, à proximité des transports, écoles et commodités.
Offrez-vous un cadre de vie durable et agréable aux portes de Paris !

