Ce lot n’est plus disponible chez VIANOVA ou est vendu.

Vous pouvez revenir dans 24h pour vérifier le stock à jour ou contacter un conseiller Vianova pour vérifier le stock en direct.
Vous pouvez également continuer votre recherche sur notre site « ici ».

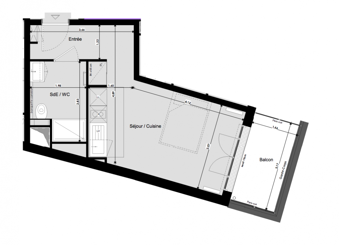
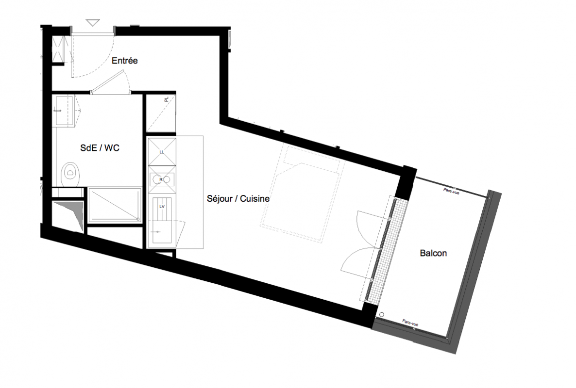
Prix
329 900€
Type
Appt. au 2ème
Pièces
Studio
Surface
26.36 m²
Exposition
Est
Ville
Saint-Mandé (94160)
Livraison
1er trimestre 2028
Informations
01 81 80 39 10

Présentation du programme "CARRE VICTOR"

La résidence Carré Victor s’installe dans un cadre résidentiel préservé, aux portes de Paris et du Bois de Vincennes.La résidence se compose de 26 logements, du T1 au T5, répartis dans un bâtiment, avec un volume principal en R+4, surmonté de deux niveaux. Cette architecture contemporaine séduit par le rythme de ses façades, animée par un jeu harmonieux de matériaux et de couleurs. Des moulures et corniches blanches viennent ponctuer l’ensemble avec élégance, apportant une touche de raffinement et de charme.Chaque appartement est conçu pour offrir confort et prestige grâce à des prestations haut de gamme. Un parquet bois contrecollé habille toutes les pièces de vie, apportant chaleur et élégance à chaque espace. Les matériaux et les finitions ont été choisis avec exigence pour créer un lieu de vie unique, à la fois raffiné et accueillant pour le bien-être des habitants.La majorité des logements bénéficient d’une double orientation, garantissant une excellente luminosité. Ils sont tous prolongés d’un espace extérieur, que ce soit un balcon, ou encore une grande terrasse en attique, ce qui constitue un véritable luxe, particulièrement en région parisienne.Pour garantir la sécurité et le confort, la résidence dispose d’un parking en sous-sol sécurisé.

Autres logements Studio du programme "CARRE VICTOR"

Pas de logements disponibles