Prix
256 400€
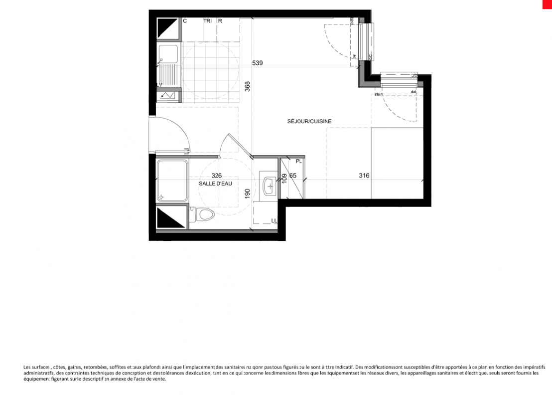
Type
Appt. au 0-RDC
Pièces
Studio
Surface
31.56 m²
Exposition
-
Ville
Villiers-sur-Marne (94350)
Livraison
4ème trimestre 2027
Informations
01 81 80 39 10

Présentation du programme "Domaine Des Prunais (Bâtiment A)"

 Nichée dans un environnement paisible et verdoyant, notre nouvelle résidence s’apprête à voir le jour et à offrir un cadre de vie harmonieux, à la fois moderne et intimement connecté à la nature. Avec son architecture élégante, ses lignes contemporaines et ses matériaux soigneusement sélectionnés, elle s’inscrit parfaitement dans son environnement tout en affirmant une identité forte et intemporelle.La conception des appartements neufs du studio au 5 pièces a été pensée pour répondre aux plus hautes exigences de confort : généreuses surfaces, luminosité naturelle omniprésente, agencements optimisés et prestations de qualité. Chaque logement bénéficie d’un espace extérieur – balcon, terrasse panoramique ou jardin privatif.Des commerces et restaurants viendront animer les rez-de-chaussée, créant un lien naturel entre les habitants et les acteurs du quartier. Une nouvelle centralité. Mais ce projet va encore plus loin. Il propose un véritable retour à l’essentiel avec des espaces communs inédits : un verger partagé, un potager collaboratif, un jardin d’enfants, ouverts à tous les résidents. Des lieux pensés pour cultiver à la fois la terre… et les liens humains.Parfaitement connectée, la résidence bénéficie d’un emplacement stratégique à seulement 10 minutes* de la gare du Grand Paris Noisy–Champs, accessible directement en bus ou en voiture. Véritable hub de mobilité, cette gare figure parmi les plus importantes d’Île-de-France, reliant rapidement Paris et les grands pôles économiques de la métropole. Une accessibilité précieuse qui renforce l’attractivité du projet, aussi bien pour les résidents actifs que pour les investisseurs en quête de valorisation durable.

Autres logements Studio du programme "Domaine Des Prunais (Bâtiment A)"

Disponibilité Prix Genre Pièces Surface Étage
Voir
Disponible
237 122€ Appt. Studio 31.56m2 0-RDC
Voir
Disponible
240 706€ Appt. Studio 31.56m2 0-RDC
Voir
Disponible
242 919€ Appt. Studio 31.56m2 0-RDC
Voir
Disponible
275 475€ Appt. Studio 35.51m2 0-RDC
Voir
Disponible
257 771€ Appt. Studio 31.56m2 0-RDC
DO NOT CLICK