Ce lot n’est plus disponible chez VIANOVA ou est vendu.
Vous pouvez revenir dans 24h pour vérifier le stock à jour ou contacter un conseiller Vianova pour vérifier le stock en direct.
Vous pouvez également continuer votre recherche sur notre site « ici ».
Prix
260 400€ (TVA 20%)
228 935€ (TVA 5.5%)
260 400€ (TVA 20%)
228 935€ (TVA 5.5%)
Type
Appt. au 0-RDC
Appt. au 0-RDC
Pièces
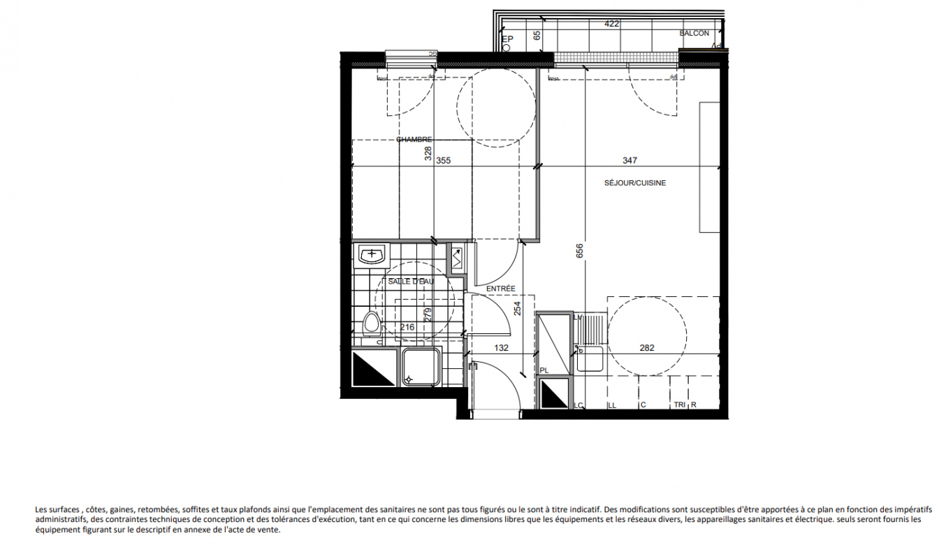
T2
T2
Surface
43.29 m²
43.29 m²
Exposition
Ouest
Ouest
Ville
Villiers-sur-Marne (94350)
Villiers-sur-Marne (94350)
Livraison
4ème trimestre 2027
4ème trimestre 2027
Informations
01 81 80 39 10
01 81 80 39 10
Présentation du programme "Domaine Des Prunais Chapitre 2"
Suite au succès de son lancement, DOMAINE DES PRUNAIS dévoile de nouveaux appartements neufs à la vente. Idéalement située à Villiers-sur-Marne, entre l’avenue Auguste Rodin et le chemin des Prunais, la résidence s’inscrit dans un environnement résidentiel calme et verdoyant. Appartements neufs du studio au 4 pièces, chaque logement dispose d’un extérieur privatif. Pensé autour d’un cœur d’îlot paysager, le projet allie confort, nature et modernité aux portes de Paris.