Prix
546 000€
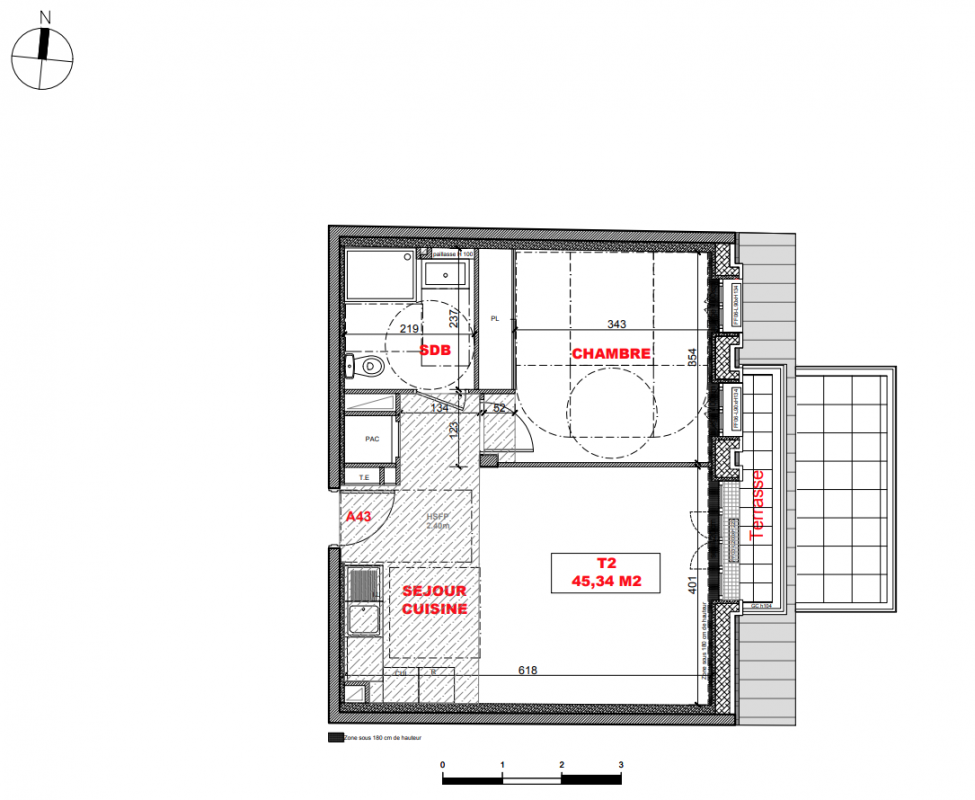
Type
Appt. au 0-RDC
Pièces
T2
Surface
45.29 m²
Exposition
-
Ville
Vincennes (94300)
Livraison
3ème trimestre 2027
Informations
01 81 80 39 10

Présentation du programme "Alcôve"

Nichée à l'orée du 12ème arrondissement de Paris, Vincennes jouit d'un emplacement stratégique qui en fait l'une des communes les plus attractives de la petite couronne.
Ici, on savoure le meilleur de Paris tout en préservant son havre de paix, loin du tumulte
de l'intra-muros. Le Bois de Vincennes, plus grand poumon vert de la capitale, est l'un des symboles forts de
la ville. Ses 995 hectares de biodiversité et ses quatre lacs s'offrent au quotidien pour le plus grand bonheur de tous les habitants. Vincennes séduit également par sa beauté architecturale et son patrimoine historique dont le Château de Vincennes est un magnifique témoignage.
C'est dans cet environnement privilégié que s'inscrit notre nouvelle résidence, au coeur d'une rue paisible, à seulement dix minutes à pied du Bois de Vincennes, à quatre minutes de la ligne de métro 1 (St Mandé) et à moins de quinze minutes des lignes de métro et du RER A (Vincennes).

Autres logements T2 du programme "Alcôve"

Disponibilité Prix Genre Pièces Surface Étage
Voir
Disponible
574 000€ Appt. T2 52.15m2 0-RDC