Prix
188 000€
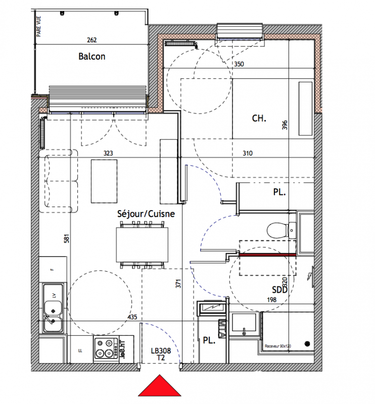
Type
Appt. au 3ème
Pièces
T2
Surface
40.38 m²
Exposition
Nord
Ville
Caen (14000)
Livraison
3ème trimestre 2028
Informations
01 81 80 39 10

Présentation du programme "COUR GABRIEL 2"

Située dans le quartier prisé de Hastings, la Cour Gabriel mêle raffinement architectural, confort moderne et emplacement stratégique, à proximité immédiate des commerces, écoles et transports.
Pensée pour le confort et la sérénité, la résidence offre des logements du 2 au 4 pièces ouverts sur un environnement verdoyant avec des prestations soignées, des espaces lumineux et traversants, ainsi que des stationnements et locaux vélos sécurisés en sous-sol.
Cour Gabriel, c’est une adresse rare entre ville, nature et patrimoine, pour vivre Caen autrement.
Contactez nos conseillers pour concrétiser votre projet immobilier : 01 81 80 39 10 (appel gratuit).

Autres logements T2 du programme "COUR GABRIEL 2"

Disponibilité Prix Genre Pièces Surface Étage
Voir
Disponible
179 000€ Appt. T2 39.84m2 2ème
Voir
Disponible
184 000€ Appt. T2 40.34m2 2ème
Voir
Disponible
208 000€ Appt. T2 39.11m2 3ème
Voir
Disponible
187 000€ Appt. T2 39.81m2 3ème
Voir
Disponible
208 000€ Appt. T2 43.4m2 4ème
DO NOT CLICK