Ce lot n’est plus disponible chez VIANOVA ou est vendu.
Vous pouvez revenir dans 24h pour vérifier le stock à jour ou contacter un conseiller Vianova pour vérifier le stock en direct.
Vous pouvez également continuer votre recherche sur notre site « ici ».
184 900€
Appt. au 2ème
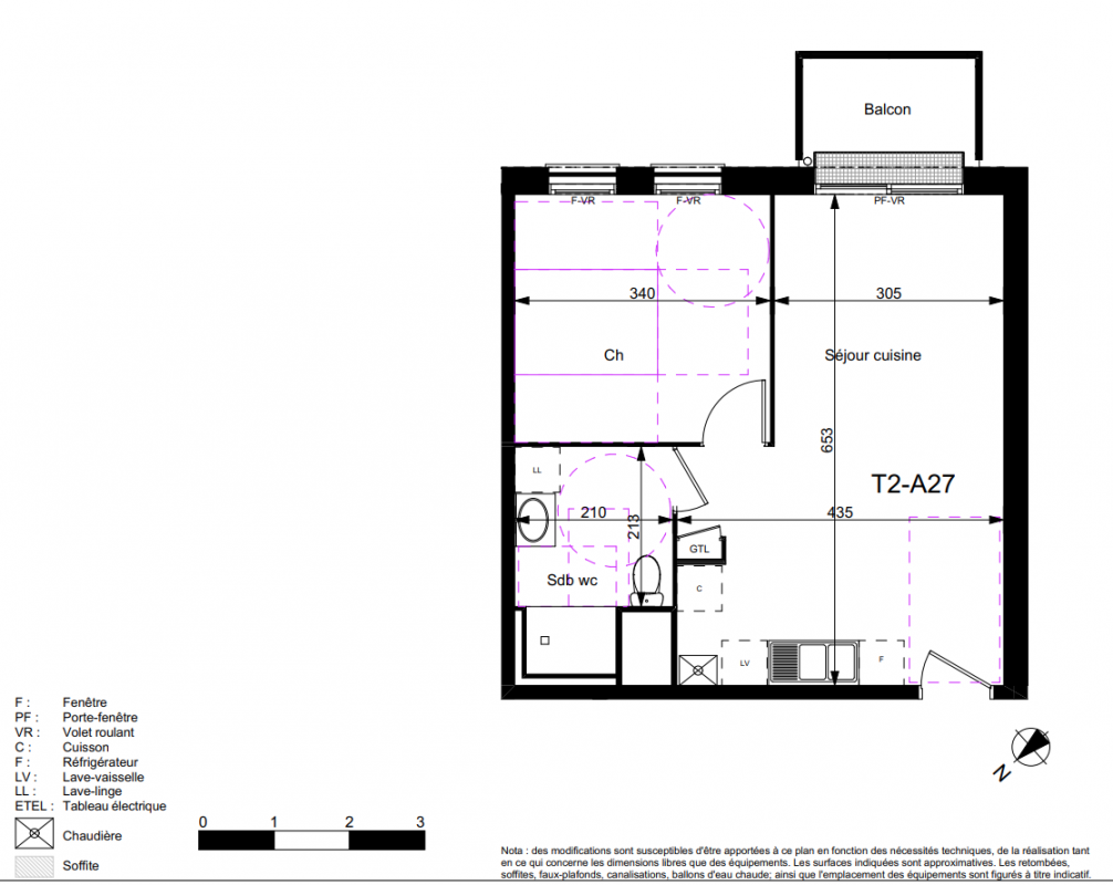
T2
40.58 m²
-
Le Mesnil-Esnard (76240)
4ème trimestre 2027
01 81 80 39 10
Présentation du programme "L'ECRIN VERT"
DEVENEZ PROPRIÉTAIRE AU MESNIL-ESNARD : VOTRE APPARTEMENT 3 PIECES À PARTIR DE 871,29 € / MOIS
Grâce au Prêt à Taux Zéro en zone B1, augmentez votre capacité d’achat en bénéficiant d’un emprunt à taux 0 % pouvant atteindre jusqu’à 162 000 € soit maximum 50 % de l’achat d’un appartement.
Située à seulement 15 minutes en voiture* du centre-ville de Rouen, Le Mesnil-Esnard séduit par son équilibre parfait entre le calme d’une ville recherchée et résidentielle et la proximité immédiate des services et infrastructures d’une grande agglomération. Reconnue pour sa qualité de vie, sa sécurité et son atmosphère conviviale, la ville attire aussi bien les familles, les actifs désireux de rejoindre rapidement Rouen grâce à un réseau de transports efficace et les seniors qui apprécieront le confort d’un logement neuf. Son centre animé, ses commerces variés, ses équipements culturels et sportifs ainsi que son environnement verdoyant en font une adresse recherchée.
UNE ADRESSE UNIQUE ET INTIMISTE AU SEIN D’UN CADRE PRIVILÉGIÉ
« L’Ecrin Vert » bénéfice d’un emplacement stratégique le long de la Route de Paris, artère dynamique à deux pas du centre-ville du Mesnil-Esnard. Le lieu de vie se compose de 40 appartements du 2 au 4 pièces tous prolongés d’un balcon. Des places de stationnement sont prévues pour chaque logement, assurant praticité au quotidien. Fort de son savoir-faire de plus de 50 ans en immobilier résidentiel, European Homes réinvente la qualité de vie à Le Mesnil-Esnard.
DES COMMODITÉS ET SERVICES A PORTÉE DE MAINS
La ville offre un cadre de vie à la fois pratique et agréable, avec toutes les commodités à portée de main. Les familles profiteront de la proximité des crèches, des écoles maternelles et primaires situées à moins de 5 minutes à pied*, les collégiens et lycéens disposent quant à eux d’établissements accessibles à respectivement 4 et 16 minutes en bus*.
Le quotidien est également facilité par la présence de services et commerces à proximité immédiate : l’arrêt de bus Haut Hubert avec sa ligne F5 desservant rapidement Rouen et les communes voisines se trouve à 4 minutes à pied* et la mairie est à 14 minutes à pied*. Un supermarché est accessible en 5 minutes à pied*, tandis que boulangeries, banques et autres commerces de proximité sont à moins de 10 minutes à pied*.
Côté loisirs et services culturels, les habitants pourront profiter des installations sportives dont le stade à 4 minutes à vélo*, le Château du Mesnil à seulement 4 min en voiture
Autres logements T2 du programme "L'ECRIN VERT"
| Disponibilité | Prix | No | Genre | Pièces | Surface | Étage | Disponibilité | Prix | ||
|---|---|---|---|---|---|---|---|---|---|---|
| Voir | Archivé | 186 700€ | A001 | Appt. | T2 | 41.6m2 | 0-RDC | Archivé | 186 700€ | Voir |
| Voir | Archivé | 179 800€ | A003 | Appt. | T2 | 40.06m2 | 0-RDC | Archivé | 179 800€ | Voir |
| Voir | Archivé | 183 800€ | A007 | Appt. | T2 | 40.58m2 | 0-RDC | Archivé | 183 800€ | Voir |
| Voir | Archivé | 177 600€ | A013 | Appt. | T2 | 40.06m2 | 1er | Archivé | 177 600€ | Voir |
| Voir | Archivé | 181 400€ | A017 | Appt. | T2 | 40.58m2 | 1er | Archivé | 181 400€ | Voir |
| Voir | Archivé | 181 700€ | A023 | Appt. | T2 | 40.06m2 | 2ème | Archivé | 181 700€ | Voir |