Prix
223 900€
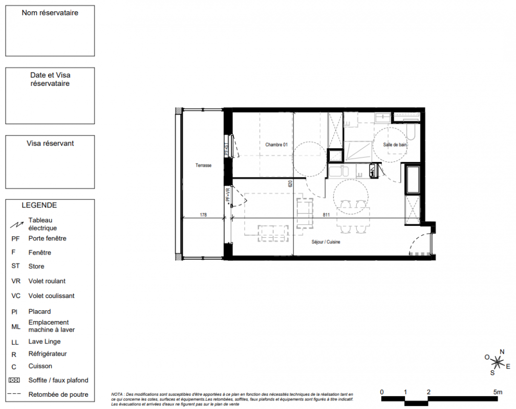
Type
Appt. au 3ème
Pièces
T2
Surface
48.07 m²
Exposition
-
Ville
Blagnac (31700)
Livraison
4ème trimestre 2026
Informations
01 81 80 39 10

Présentation du programme "CARRE DES CEDRES"

Frais de notaire OFFERTS & pour les blagnacais 1000€ de remise /pièce !*
Blagnac située à quelques minutes du centre-ville de Toulouse profite d’une belle vitalité locale avec par exemple les sièges d’Airbus et d’ATR. C’est également une commune agréable à vivre avec ses nombreux espaces verts, infrastructures sportives et culturelles. La nouvelle résidence de Vianova CARRE DES CEDRES longée par le tram T1 arrêt Patinoire se situe à 6 min à pied du Carrefour et des commerces Odyssud -Ritouret, et à 12 min à pied du parc. Le quartier des Cèdres est actuellement en plein renouveau et promet à termes de nombreux espaces verts et circulations douces.
La résidence certifiée NF Habitat se compose de 95 logements du 2 au 5 pièces tous prolongés par d’agréables extérieurs.
Dès à présent faites votre choix :
- pour accéder à la propriété, bénéficiez d’un PTZ plus attractif en 2024 et de la TVA réduite à 5,5%
- pour votre projet d’investissement défiscalisez avec des lots éligibles au PINEL + ou bien louez en meublé avec une meilleure rentabilité
*hors TVA 5,5 valable jusqu'au 31.03.2024

Autres logements T2 du programme "CARRE DES CEDRES"

Disponibilité Prix Genre Pièces Surface Étage
Voir
Disponible
251 500€ Appt. T2 53.29m2 4ème
Voir
Disponible
262 700€ Appt. T2 53.19m2 6ème