Prix
165 000€
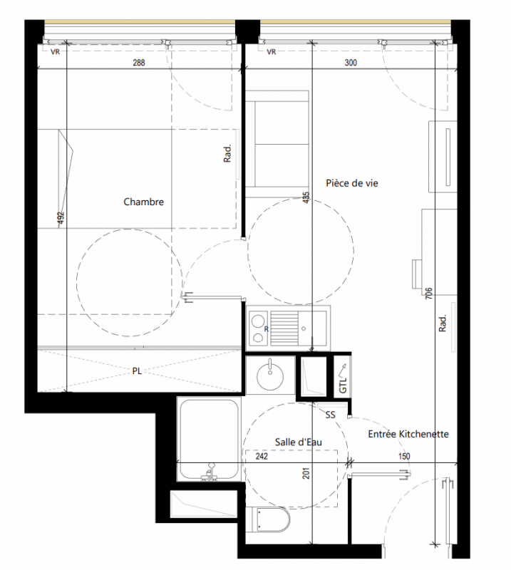
Type
Appt. au 2ème
Pièces
T2
Surface
35.83 m²
Exposition
-
Ville
Toulouse (31000)
Livraison
2ème trimestre 2027
Informations
01 81 80 39 10

Présentation du programme "AERO CAMPUS"

Autres logements T2 du programme "AERO CAMPUS"

Disponibilité Prix Genre Pièces Surface Étage
Voir
Disponible
165 000€ Appt. T2 35.83m2 3ème