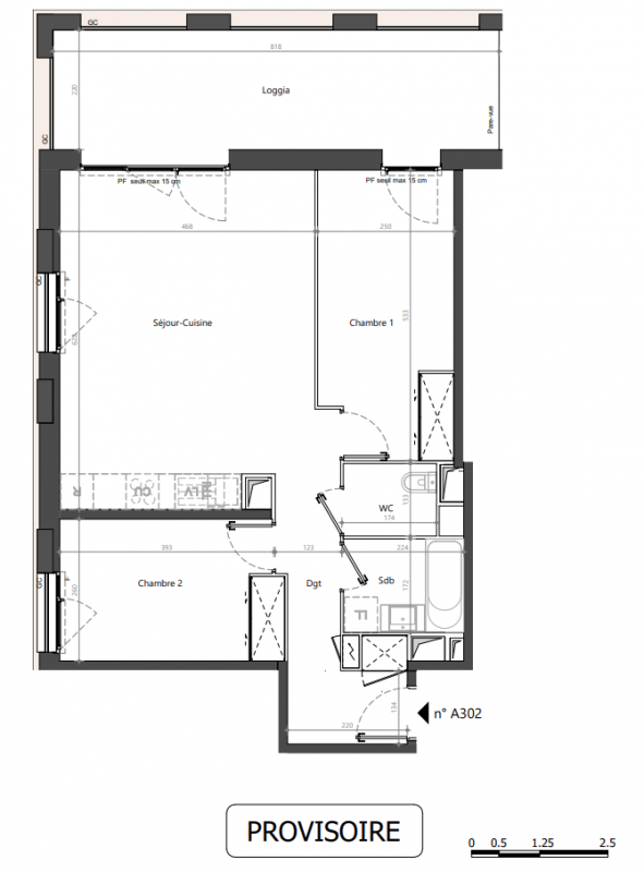
305 800€
Appt. au 3ème
T3
65.61 m²
Nord-Ouest
Toulouse (31000)
4ème trimestre 2028
01 81 80 39 10
Présentation du programme "Programme neuf Toulouse (31000)"
GRAND LANCEMENT COMMERCIAL à TOULOUSE les 27 & 28 mars ! Soyez parmi les premiers à choisir votre appartement neuf avec espace extérieur et parking ! Jusqu'à 4500 euros de remise & frais de notaire offerts.Du 2 au 4 pièces, les appartements offrent des surfaces optimisées, traversantes et lumineuses, avec une double orientation pour la plupart. Tous les logements bénéficient d'un espace extérieur, idéal pour profiter des vues dégagées sur le parc, les Pyrénées, la Garonne ou les toits de Toulouse. L'agencement soigné, les prestations de qualité et la générosité des volumes assurent un confort de vie durable et contemporain.La résidence s'organise autour d'un cœur d'îlot paysager pensé comme un lieu de respiration et de rencontre. Une promenade douce traverse l'ensemble, ponctuée de zones de détente. Des locaux vélos facilement accessibles, un parking et des accès sécurisés viennent compléter les services offerts par ce cadre de vie moderne et convivial.Située dans l'écoquartier dynamique de la Cartoucherie, à l'ouest de Toulouse, la résidence bénéficie d'un environnement urbain complet : commerces, écoles, équipements sportifs, cinéma, théâtre... Tout est sur place. À quelques minutes à pied, les Jardins du Barry et les bords de Garonne offrent un cadre naturel privilégié. Le Zénith, l'aéroport, l'hôpital Purpan et le centre-ville sont rapidement accessibles, grâce à l'arrêt de tramway T1 _ Zénith _ situé au pied de la résidence, et aux lignes de bus 31 et 45.Contactez dès maintenant un de nos conseillers pour découvrir en avant-première tous nos appartements neufs à et bénéficier des meilleures conditions pour votre achat !
Autres logements T3 du programme "Programme neuf Toulouse (31000)"
| Disponibilité | Prix | No | Genre | Pièces | Surface | Étage | Disponibilité | Prix | ||
|---|---|---|---|---|---|---|---|---|---|---|
| Voir | Disponible | 317 200€ | A1001 | Appt. | T3 | 60.97m2 | 10ème | Disponible | 317 200€ | Voir |
| Voir | Disponible | 340 100€ | A1002 | Appt. | T3 | 65.45m2 | 10ème | Disponible | 340 100€ | Voir |
| Voir | Disponible | 310 000€ | A1003 | Appt. | T3 | 60.12m2 | 10ème | Disponible | 310 000€ | Voir |
| Voir | Disponible | 299 600€ | A102 | Appt. | T3 | 65.61m2 | 1er | Disponible | 299 600€ | Voir |
| Voir | Disponible | 295 400€ | A104 | Appt. | T3 | 65.65m2 Le bon plan | 1er | Disponible | 295 400€ | Voir |
| Voir | Disponible | 319 300€ | A1102 | Appt. | T3 | 60.91m2 | 11ème | Disponible | 319 300€ | Voir |
| Voir | Disponible | 307 900€ | A1203 | Appt. | T3 | 57.65m2 | 12ème | Disponible | 307 900€ | Voir |
| Voir | Disponible | 318 300€ | A1301 | Appt. | T3 | 57.78m2 | 13ème | Disponible | 318 300€ | Voir |
| Voir | Disponible | 324 500€ | A1401 | Appt. | T3 | 57.78m2 | 14ème | Disponible | 324 500€ | Voir |
| Voir | Disponible | 329 700€ | A1501 | Appt. | T3 | 57.78m2 | 15ème | Disponible | 329 700€ | Voir |
| Voir | Disponible | 336 000€ | A1601 | Appt. | T3 | 57.78m2 | 16ème | Disponible | 336 000€ | Voir |
| Voir | Disponible | 279 800€ | A201 | Appt. | T3 | 60.97m2 | 2ème | Disponible | 279 800€ | Voir |
| Voir | Disponible | 302 700€ | A202 | Appt. | T3 | 65.61m2 | 2ème | Disponible | 302 700€ | Voir |
| Voir | Disponible | 298 500€ | A204 | Appt. | T3 | 65.65m2 | 2ème | Disponible | 298 500€ | Voir |
| Voir | Disponible | 281 900€ | A301 | Appt. | T3 | 60.97m2 | 3ème | Disponible | 281 900€ | Voir |
| Voir | Disponible | 301 600€ | A304 | Appt. | T3 | 65.65m2 | 3ème | Disponible | 301 600€ | Voir |
| Voir | Disponible | 285 000€ | A401 | Appt. | T3 | 60.97m2 | 4ème | Disponible | 285 000€ | Voir |
| Voir | Disponible | 308 900€ | A402 | Appt. | T3 | 65.61m2 | 4ème | Disponible | 308 900€ | Voir |
| Voir | Disponible | 304 800€ | A404 | Appt. | T3 | 65.65m2 | 4ème | Disponible | 304 800€ | Voir |
| Voir | Disponible | 288 100€ | A501 | Appt. | T3 | 60.97m2 | 5ème | Disponible | 288 100€ | Voir |
| Voir | Disponible | 312 000€ | A502 | Appt. | T3 | 65.61m2 | 5ème | Disponible | 312 000€ | Voir |
| Voir | Disponible | 308 900€ | A504 | Appt. | T3 | 65.79m2 | 5ème | Disponible | 308 900€ | Voir |
| Voir | Disponible | 291 200€ | A601 | Appt. | T3 | 60.97m2 | 6ème | Disponible | 291 200€ | Voir |
| Voir | Disponible | 315 200€ | A602 | Appt. | T3 | 65.61m2 | 6ème | Disponible | 315 200€ | Voir |
| Voir | Disponible | 308 900€ | A604 | Appt. | T3 | 65.16m2 | 6ème | Disponible | 308 900€ | Voir |
| Voir | Disponible | 289 200€ | A701 | Appt. | T3 | 61m2 | 7ème | Disponible | 289 200€ | Voir |
| Voir | Disponible | 319 300€ | A702 | Appt. | T3 | 65.63m2 | 7ème | Disponible | 319 300€ | Voir |
| Voir | Disponible | 280 800€ | A703 | Appt. | T3 | 58.3m2 | 7ème | Disponible | 280 800€ | Voir |
| Voir | Disponible | 291 200€ | A801 | Appt. | T3 | 61m2 | 8ème | Disponible | 291 200€ | Voir |
| Voir | Disponible | 322 400€ | A802 | Appt. | T3 | 65.63m2 | 8ème | Disponible | 322 400€ | Voir |
| Voir | Disponible | 292 300€ | A803 | Appt. | T3 | 60.12m2 | 8ème | Disponible | 292 300€ | Voir |
| Voir | Disponible | 306 800€ | A901 | Appt. | T3 | 61.12m2 | 9ème | Disponible | 306 800€ | Voir |
| Voir | Disponible | 328 700€ | A902 | Appt. | T3 | 65.63m2 | 9ème | Disponible | 328 700€ | Voir |
| Voir | Disponible | 298 500€ | A903 | Appt. | T3 | 60.12m2 | 9ème | Disponible | 298 500€ | Voir |