Prix
375 000€
Type
Appt. au 2ème
Pièces
T3
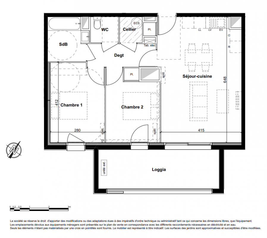
Surface
60.93 m²
Exposition
-
Ville
Toulouse (31000)
Livraison
2ème trimestre 2028
Informations
01 81 80 39 10

Présentation du programme "ARCELIA"

Cette résidence neuve à taille humaine propose 26 appartements du 2 au 5 pièces, conçus pour répondre aux attentes des acquéreurs en quête de confort, de fonctionnalité et de qualité de vie en coeur de ville. Les logements offrent des plans optimisés, une belle luminosité et, pour la majorité, un extérieur privatif.

Le programme bénéficie d'une excellente accessibilité grâce à la proximité du métro ligne A - Saint-Cyprien République, du tramway T1 et T2 - Fer à Cheval, des lignes de bus et des pistes cyclables. Commerces, écoles, services et équipements culturels sont accessibles à pied.

Pensé pour l'habitat comme pour l'investissement, ARCELIA s'inscrit dans un secteur à forte attractivité résidentielle et locative, rare en immobilier neuf à Toulouse. La résidence dispose de stationnements en sous-sol, ainsi que de prestations soignées, conformes aux normes en vigueur.

Autres logements T3 du programme "ARCELIA"

Disponibilité Prix Genre Pièces Surface Étage
Voir
Disponible
370 000€ Appt. T3 60.79m2 1er
Voir
Disponible
370 000€ Appt. T3 60.93m2 1er
Voir
Disponible
390 000€ Appt. T3 63.58m2 4ème
Voir
Disponible
390 000€ Appt. T3 65.8m2 1er
DO NOT CLICK