Prix
214 999€
Type
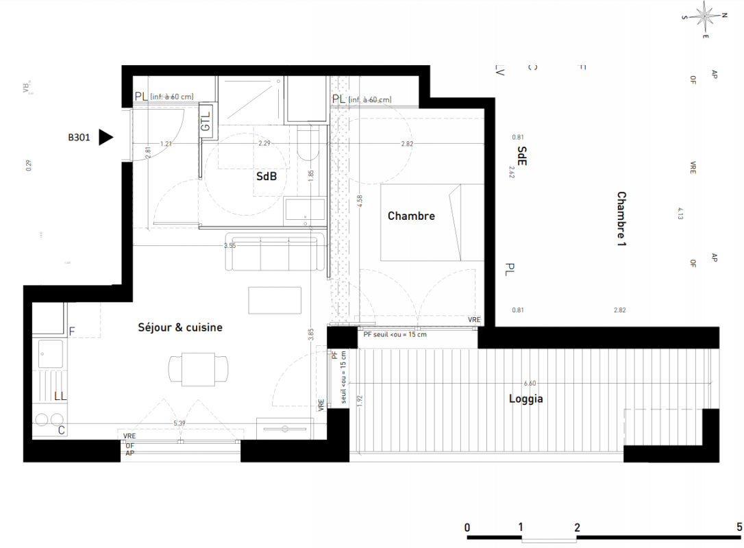
Appt. au 3ème
Pièces
T2
Surface
38 m²
Exposition
-
Ville
Toulouse (31000)
Livraison
3ème trimestre 2029
Informations
01 81 80 39 10

Présentation du programme "Lisière du Parc"

Lisière du Parc est une résidence située au coeur du quartier dynamique de la Cartoucherie à Toulouse. Ce secteur en plein essor offre un cadre de vie attractif, mêlant logements, espaces verts, commerces, équipements culturels et lieux de loisirsLa résidence Lisière du Parc développée par Crédit Agricole Immobilier et Vianova, se compose de deux bâtiments de 8 et 16 étages offrant de belles vues, notamment sur le futur parc voisin.
Les appartements neufs, du studio au 4 pièces, privilégient la luminosité grâce à des configurations traversantes ou en double orientation, et disposent pour la plupart de balcons, terrasses ou jardins. Conçue avec une attention particulière portée à la qualité et à la performance énergétique, la résidence s'intègre harmonieusement dans son environnement. Bien desservie par le tramway, elle offre un accès rapide au centre-ville et constitue une opportunité rare pour habiter ou investir à Toulouse. Pour découvrir la résidence en avant-première contactez-nous !

Autres logements T2 du programme "Lisière du Parc"

Disponibilité Prix Genre Pièces Surface Étage
Voir
Disponible
223 999€ Appt. T2 38m2 7ème
Voir
Disponible
211 000€ Appt. T2 38m2 1er
DO NOT CLICK