Prix
809 000€
Type
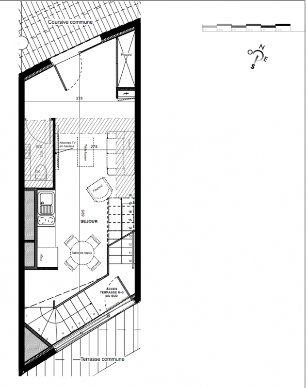
Appt. au 3ème
Pièces
T2
Surface
56.25 m²
Exposition
-
Ville
Agde (34300)
Livraison
2ème trimestre 2026
Informations
01 81 80 39 10

Présentation du programme "Le vibes resort"

Autres logements T2 du programme "Le vibes resort"

Disponibilité Prix Genre Pièces Surface Étage
Voir
Disponible
721 000€ Appt. T2 49.15m2 3ème
Voir
Disponible
779 900€ Appt. T2 53.95m2 3ème
Voir
Disponible
809 000€ Appt. T2 56.3m2 3ème
Voir
Disponible
874 000€ Appt. T2 59.15m2 3ème
Voir
Disponible
779 900€ Appt. T2 53.8m2 3ème
Voir
Disponible
729 900€ Appt. T2 49.15m2 3ème
Voir
Disponible
729 900€ Appt. T2 49.35m2 3ème
Voir
Disponible
741 000€ Appt. T2 52.35m2 3ème
DO NOT CLICK