Prix
300 284€
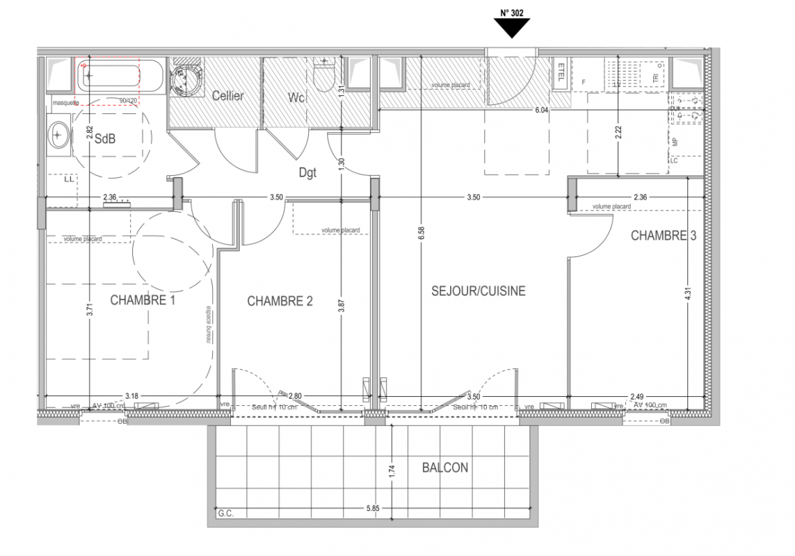
Type
Appt. au 3ème
Pièces
T4
Surface
76.42 m²
Exposition
Sud
Ville
Istres (13118)
Livraison
1er trimestre 2028
Informations
01 81 80 39 10

Présentation du programme "PATIO MOSAIK"

Avec Constellation Provence, choisissez votre art de vivre avec nos 2 résidences Coeur Pinède et Patio Mozaïk : au cœur d’une vaste pinède classée ou en bélvédère sur la plaine.


Chaque appartement, du 2 au 4 pièces, bénéficie d’un espace extérieur privatif : loggia, balcon ou terrasse, pour profiter pleinement des vues dégagées sur la nature environnante.
À quelques minutes de votre futur appartement, retrouvez toutes les commodités indispensables : écoles, commerces, équipements sportifs et culturels, transports en commun, ainsi que les plages et le centre historique d’Istres.

Offrez-vous une nouvelle vie dans un cadre sécurisé, apaisant et résolument tourné vers la nature.

Autres logements T4 du programme "PATIO MOSAIK"

Disponibilité Prix Genre Pièces Surface Étage
Voir
Disponible
299 147€ Appt. T4 77.01m2
Le bon plan
2ème