475 500€
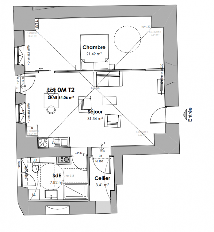
Appt. au 0-RDC
T2
64.06 m²
-
Clermont-Ferrand (63000)
1er trimestre 2024
01 81 80 39 10
Présentation du programme ": La Maison Du Bon-pasteur"
Un havre de paix en coeur de villeC'est un monument historique de la ville, bien connu des Montferrandais. Typique de l’architecture locale, avec ses formes régulières, une sobre élégance et bien sûr la pierre noire de Volvic, omniprésente. Il fut édifié à partir de 1623 par la Congrégation des Ursulines, avec pour vocation l’éducation des jeunes filles. Repris au XIXe siècle par les soeurs de Saint-Joseph, il prendra le nom de Maison du Bon Pasteur. Poussez la lourde porte de la Maison, un monde à part s'ouvre à vous. Un îlot de sérénité, authentique et précieux, préservé des bruits de la ville, où la nature a toute sa place et le temps semble s’être arrêté. Elle conjugue les atouts d’une architecture fonctionnelle, pure et le charme d’un édifice patrimonial unique : plafonds peints et escalier bois classés aux monuments historiques, cloître avec galeries, dallages en pierre,parquets bois, cheminées, moulures …Clermont-Ferrand, un territoire d'équilibre et de progrèsExactement au centre de la France, au coeur de la 1re région industrielle - Auvergne-Rhône-Alpes, la métropole de Clermont-Ferrand parvient à conjuguer l’attractivité d’un territoire entreprenant et innovant avec une qualité de vie rare, portée par un environnement naturel exceptionnel, aux portes de la Chaîne des Puys, classée au patrimoine mondial de l’UNESCO. Elle a su bâtir un tissu économique dense et dynamique comptant, aux côtés de grands groupes industriels, des PME pointues et des startups audacieuses dans les biotechnologies, la mécanique… Elle est aussi terre de création et de culture, avec notamment le plusgrand festival de court-métrage au monde. Les étudiants ne s’y sont pas trompés. Ils sont toujours plus nombreux à la choisir.
Autres logements T2 du programme ": La Maison Du Bon-pasteur"
Disponibilité | Prix | No | Genre | Pièces | Surface | Étage | Disponibilité | Prix | ||
---|---|---|---|---|---|---|---|---|---|---|
Voir | Disponible | 292 000€ | 3R | Appt. | T2 | 31.78m2 | 3ème | Disponible | 292 000€ | Voir |
Voir | Disponible | 317 500€ | 2D | Appt. | T2 | 35.01m2 | 2ème | Disponible | 317 500€ | Voir |
Voir | Disponible | 322 000€ | 1B | Appt. | T2 | 35.91m2 | 1er | Disponible | 322 000€ | Voir |
Voir | Disponible | 358 000€ | 3D | Appt. | T2 | 40.06m2 | 3ème | Disponible | 358 000€ | Voir |
Voir | Disponible | 365 000€ | 3A | Appt. | T2 | 40.99m2 | 3ème | Disponible | 365 000€ | Voir |
Voir | Disponible | 371 000€ | 1H | Appt. | T2 | 41.59m2 | 1er | Disponible | 371 000€ | Voir |
Voir | Disponible | 387 500€ | 2H | Appt. | T2 | 42.68m2 | 2ème | Disponible | 387 500€ | Voir |
Voir | Disponible | 391 500€ | 2I | Appt. | T2 | 44m2 | 2ème | Disponible | 391 500€ | Voir |
Voir | Disponible | 392 000€ | 2A | Appt. | T2 | 44.09m2 | 2ème | Disponible | 392 000€ | Voir |
Voir | Disponible | 395 500€ | 1L | Appt. | T2 | 44.35m2 | 1er | Disponible | 395 500€ | Voir |
Voir | Disponible | 396 000€ | 2C | Appt. | T2 | 44.65m2 | 2ème | Disponible | 396 000€ | Voir |
Voir | Disponible | 408 500€ | 1A | Appt. | T2 | 45.94m2 | 1er | Disponible | 408 500€ | Voir |
Voir | Disponible | 414 000€ | 1I | Appt. | T2 | 46.39m2 | 1er | Disponible | 414 000€ | Voir |
Voir | Disponible | 419 500€ | 3I | Appt. | T2 | 47.13m2 | 3ème | Disponible | 419 500€ | Voir |
Voir | Disponible | 429 000€ | 3O | Appt. | T2 | 49.24m2 | 3ème | Disponible | 429 000€ | Voir |
Voir | Disponible | 434 500€ | 2G | Appt. | T2 | 49.47m2 | 2ème | Disponible | 434 500€ | Voir |
Voir | Disponible | 434 500€ | 1J | Appt. | T2 | 49.54m2 | 1er | Disponible | 434 500€ | Voir |
Voir | Disponible | 453 500€ | 1M | Appt. | T2 | 53m2 | 1er | Disponible | 453 500€ | Voir |
Voir | Disponible | 536 500€ | 0G | Appt. | T2 | 63.51m2 | 0-RDC | Disponible | 536 500€ | Voir |