Prix
227 488€  (TVA 20%)
200 000€  (TVA 5.5%)
Type
Appt. au 5ème
Pièces
Studio
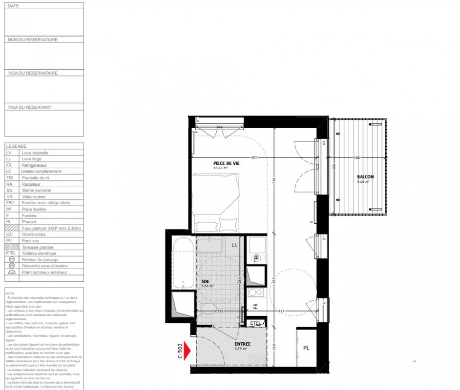
Surface
29.64 m²
Exposition
-
Ville
Colombes (92700)
Livraison
2ème trimestre 2028
Informations
01 81 80 39 10

Présentation du programme "PLURIELLES"

NOUVEAU A COLOMBES (92) - DEMARRAGE DES TRAVAUX - Rue des Champarons/avenue de Stalingrad : VINCI Immobilier et BOUYGUES IMMOBILIER s’associent pour vous proposer une résidence aux lignes modernes articulée autour d’un cœur d’îlot paysager. Vous serez séduits par un large choix d’appartements neufs du studio au 5 pièces aux prestations de qualité conçus pour répondre à tous vos besoins, et, prolongés pour la plupart de généreux espaces extérieurs : balcons, terrasses et jardins privatifs au rez-de-chaussée. Dans un quartier dynamique en plein essor, les commerces de proximité, les équipements scolaires, publics et sportifs faciliteront votre quotidien. Située à 450 mètres de la résidence, le tramway T1 vous mènera au métro M13 Asnières-Les Courtilles en 2 minutes. Vous profiterez pour l’acquisition de votre résidence principale du nouveau PTZ et d’une TVA réduite à 5,5% (sous conditions, disponibles auprès de nos conseillers). Plus d’informations au 0 800 124 124

Autres logements Studio du programme "PLURIELLES"

Disponibilité Prix Genre Pièces Surface Étage
Voir
Disponible
230 965€ Appt. Studio 29.98m2 4ème
Voir
Optionné
230 000€ Appt. Studio 29.92m2 7ème
DO NOT CLICK