498 100€ (TVA 20%)
437 913€ (TVA 5.5%)
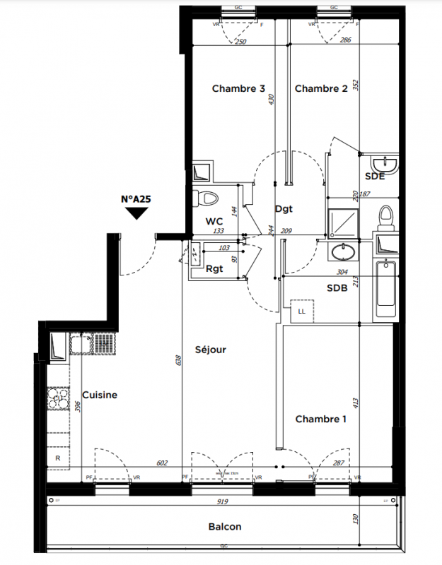
Appt. au 2ème
T4
81 m²
Sud
Fontenay-aux-Roses (92260)
4ème trimestre 2028
01 81 80 39 10
Présentation du programme "Programme neuf Fontenay-aux-Roses (92260)"
NOUVEAU à FONTENAY-AUX-ROSES ! Soyez parmi les premiers à choisir votre logement neuf avec espace extérieur et parking ! Et en plus, devenez propriétaire pour le même prix que votre loyer, grâce à la TVA réduite à 5,5% ! Découvrez nos appartements du 2 au 5 pièces, certains bénéficiant d'une double exposition qui assure un maximum de lumière naturelle. Chaque logement bénéficie d'un espace extérieur, qu'il s'agisse d'un balcon, d'une terrasse ou d'un jardin privatif, parfait pour profiter des beaux jours dès qu'ils arrivent. La résidence est également équipée d'un parking en sous-sol ainsi qu'un local à vélos. L'architecture de la résidence rend hommage au style Art Déco, si caractéristique de Fontenay-aux-Roses, avec un design raffiné et une façade en pierre de qualité. Située au cœur du nouveau quartier des Paradis, elle offre une accessibilité optimale avec l'arrêt de bus "Maison de Quartier" au pied de la résidence, le RER B Fontenay-aux-Roses à seulement 750 mètres et la station Sceaux à 600 mètres. À moins de dix minutes à pied, vous trouverez une crèche, une école élémentaire, un supermarché et de nombreux commerces de proximité. À terme, le quartier accueillera également un terrain de sport et une salle de boxe, participant au dynamisme de ce renouvellement urbain.Fontenay-aux-Roses se distingue par ses nombreux espaces verts et parcs, offrant un cadre de vie à taille humaine où nature et ville cohabitent harmonieusement. La ville séduit par son environnement calme et familial, idéal pour y installer son quotidien.Contactez dès maintenant un de nos conseillers pour découvrir tous nos appartements neufs à Fontenay-aux-Roses et être parmi les premiers à choisir le logement de vos rêves !
Autres logements T4 du programme "Programme neuf Fontenay-aux-Roses (92260)"
| Disponibilité | Prix | No | Genre | Pièces | Surface | Étage | Disponibilité | Prix | ||
|---|---|---|---|---|---|---|---|---|---|---|
| Voir | Disponible | 479 100€ | A12 | Appt. | T4 | 81.35m2 | 1er | Disponible | 479 100€ | Voir |
| Voir | Disponible | 489 800€ | A22 | Appt. | T4 | 81.41m2 | 2ème | Disponible | 489 800€ | Voir |
| Voir | Disponible | 507 600€ | A35 | Appt. | T4 | 81m2 | 3ème | Disponible | 507 600€ | Voir |
| Voir | Disponible | 550 100€ | A42 | Appt. | T4 | 84.65m2 | 4ème | Disponible | 550 100€ | Voir |
| Voir | Disponible | 573 800€ | A52 | Appt. | T4 | 84.65m2 | 5ème | Disponible | 573 800€ | Voir |
| Voir | Disponible | 567 900€ | A62 | Appt. | T4 | 84.68m2 | 6ème | Disponible | 567 900€ | Voir |
| Voir | Disponible | 511 100€ | B35 | Appt. | T4 | 82.3m2 | 3ème | Disponible | 511 100€ | Voir |
| Voir | Disponible | 522 900€ | B43 | Appt. | T4 | 82.3m2 | 4ème | Disponible | 522 900€ | Voir |
| Voir | Disponible | 547 800€ | B53 | Appt. | T4 | 82.3m2 | 5ème | Disponible | 547 800€ | Voir |
| Voir | Disponible | 572 600€ | B63 | Appt. | T4 | 82.3m2 | 6ème | Disponible | 572 600€ | Voir |
| Voir | Disponible | 583 300€ | B73 | Appt. | T4 | 82.3m2 | 7ème | Disponible | 583 300€ | Voir |
| Voir | Disponible | 605 700€ | B82 | Appt. | T4 | 84.25m2 | 8ème | Disponible | 605 700€ | Voir |