Prix
449 289€
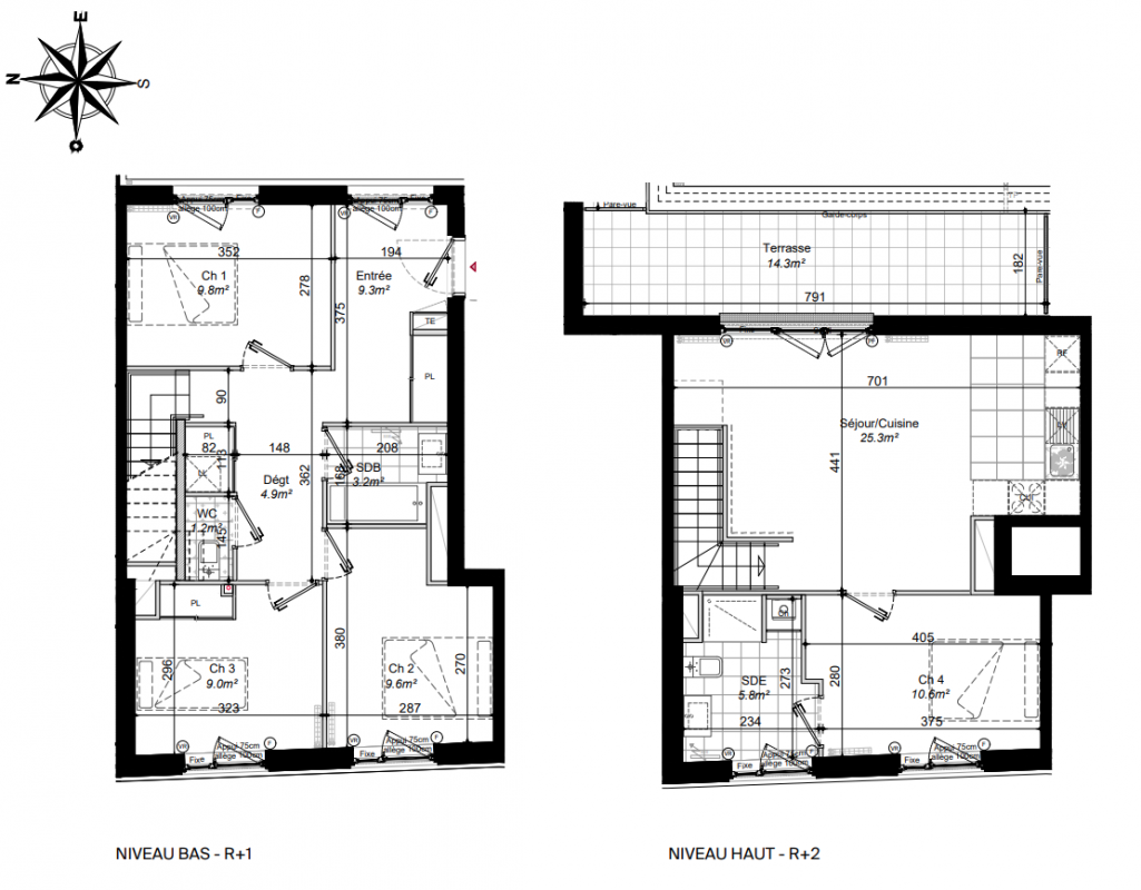
Type
Appt. au 1er
Pièces
T5
Surface
90.3 m²
Exposition
-
Ville
Aubervilliers (93300)
Livraison
2ème trimestre 2027
Informations
01 81 80 39 10

Présentation du programme "Les Rives du canal"

Découvrez une nouvelle résidence signée Alios, composée de 26 appartements du 2 au 5 pièces duplex avec espace extérieur pour la plupart. Les appartements sont traversants et bénéficient de belles expositions. La nature est également mise à l’honneur avec un jardin commun, un mail paysager et le square Roser qui se situe juste à côté de la résidence.

Autres logements T5 du programme "Les Rives du canal"

Disponibilité Prix Genre Pièces Surface Étage
Voir
Disponible
447 014€ Appt. T5 89.8m2 1er
Voir
Disponible
452 701€ Appt. T5 90.9m2 1er
DO NOT CLICK