Prix
428 246€
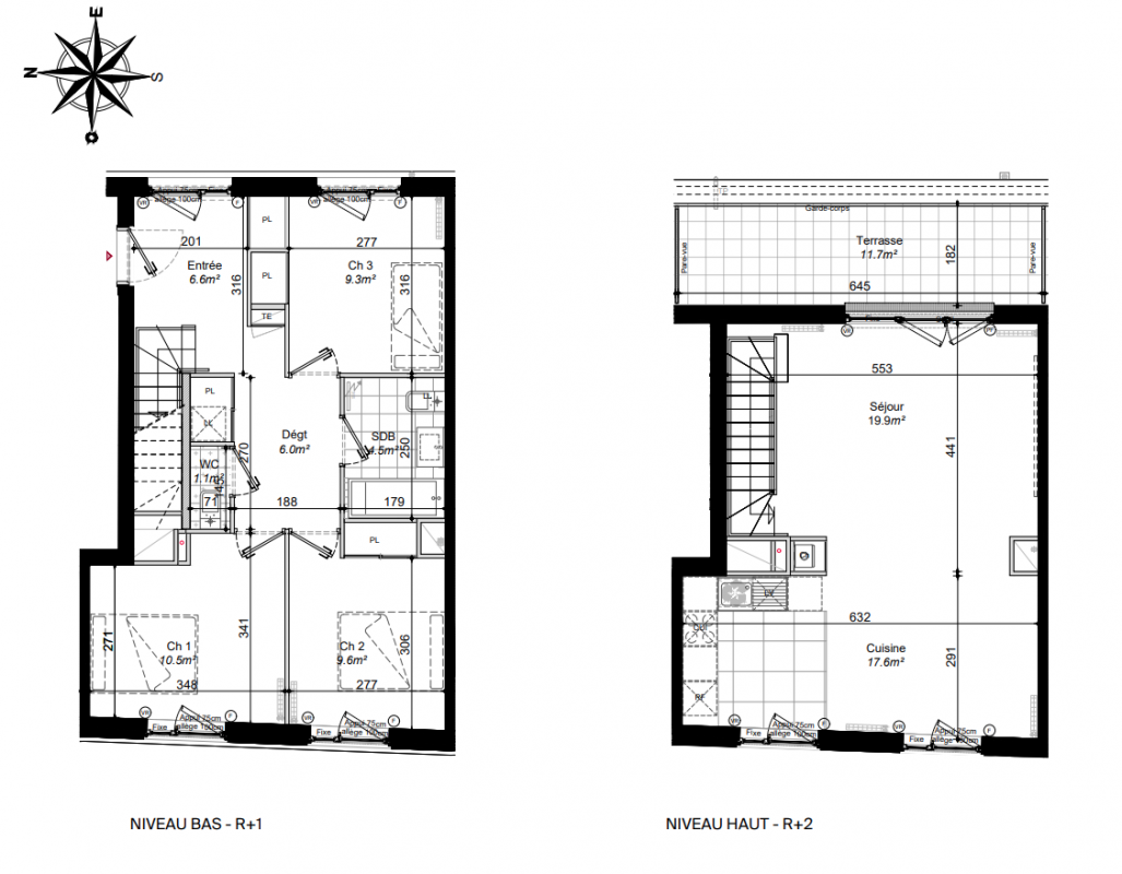
Type
Appt. au 1er
Pièces
T4
Surface
85 m²
Exposition
-
Ville
Aubervilliers (93300)
Livraison
2ème trimestre 2027
Informations
01 81 80 39 10

Présentation du programme "Les Rives du canal"

Découvrez une nouvelle résidence signée Alios, composée de 26 appartements du 2 au 5 pièces duplex avec espace extérieur pour la plupart. Les appartements sont traversants et bénéficient de belles expositions. La nature est également mise à l’honneur avec un jardin commun, un mail paysager et le square Roser qui se situe juste à côté de la résidence.

Autres logements T4 du programme "Les Rives du canal"

Disponibilité Prix Genre Pièces Surface Étage
Voir
Disponible
383 318€ Appt. T4 76m2 1er
Voir
Disponible
428 815€ Appt. T4 85m2 1er
Voir
Disponible
421 991€ Appt. T4 83.7m2 1er
DO NOT CLICK