Ce lot n’est plus disponible chez VIANOVA ou est vendu.
Vous pouvez revenir dans 24h pour vérifier le stock à jour ou contacter un conseiller Vianova pour vérifier le stock en direct.
Vous pouvez également continuer votre recherche sur notre site « ici ».
227 298€ (TVA 20%)
199 833€ (TVA 5.5%)
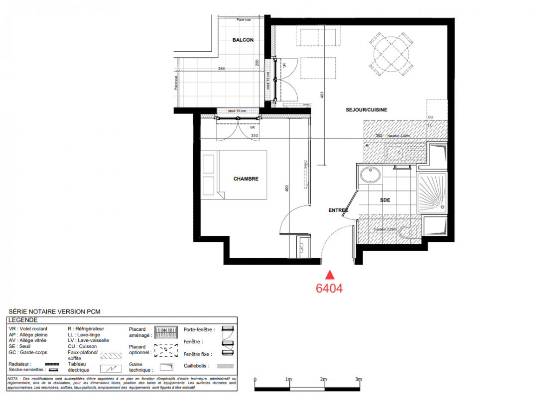
Appt. au 4ème
T2
37 m²
Nord-Ouest
Drancy (93700)
4ème trimestre 2025
01 81 80 39 10
Présentation du programme "GREEN MELODY"
Une adresse idéale en plein coeur de ville, à seulement 6km de la porte de Pantin et de Paris. Un réaménagement total du quartier du marché de Drancy, offrant une vraie vie de village avec des commerces, une placette publique aménagée, le marché communal, des bâtiments à taille humaine.Profitez d'un emplacement central proche de toutes les commodités (écoles, commerces, gymnase, mairie..) et à proximité des transports (ligne 5 à 1,9km, Tramway T1 à 1,5km, RER B à 2km). L'arrivée des futures lignes 16, 17 et orange du Grand Paris favorisera les déplacements. Découvrez des appartements du 2 au 5 pièces pourvus de belles ouvertures sur l'extérieur et des prestations de qualité pour un confort optimal. La plupart sont dotés de belles expositions et donnent sur un coeur d'îlot paysager au calme de l'attraction du centre-ville. Des logements innovants et connectés avec notre solution Eugénie : une application mobile inédite. Profitez de la TVA 5.5% pour l'achat de votre résidence principale.