301 422€ (TVA 20%)
265 000€ (TVA 5.5%)
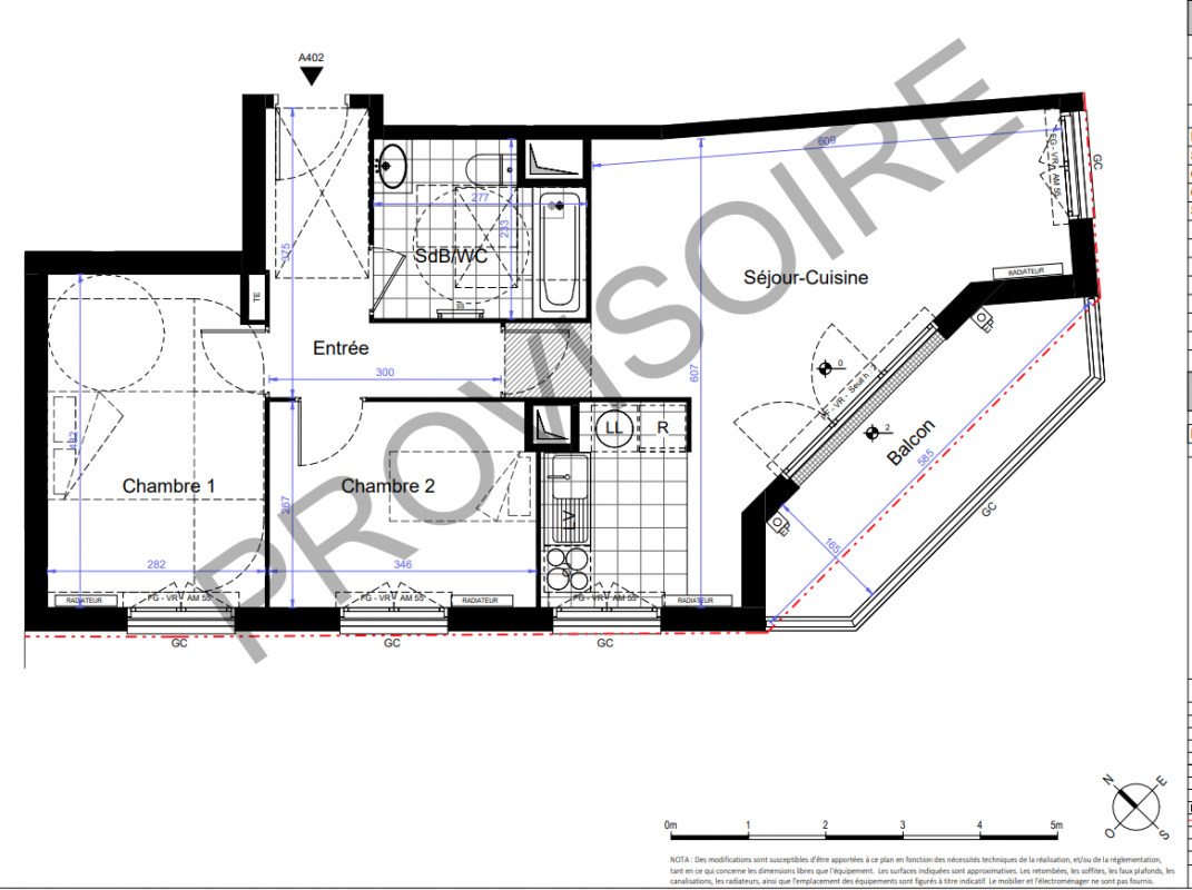
Appt. au 4ème
T3
61.15 m²
-
Drancy (93700)
1er trimestre 2028
01 81 80 39 10
Présentation du programme "L’Anatole"
Prochainement "L'Anatole" : votre future Adresse à Drancy ! Découvrez "L'Anatole", une résidence élégante et moderne, idéalement située à seulement 4 minutes à pied de la gare RER, permettant un accès rapide à Châtelet-les-Halles en 17 minutes. Cette nouvelle adresse au 249 rue Anatole vous offre bien plus qu'un lieu de vie : un îlot de verdure intérieur pour se ressourcer, des commerces de proximité pour faciliter le quotidien, et un accès direct au centre-ville de Drancy tout en étant proche de la limite du Blanc Mesnil. Nos appartements, allant du T2 au T4, sont conçus pour répondre aux attentes de confort et de modernité. Ils sont prolongés de balcons, loggias, terrasses, avec des vues dégagées et, pour certains, des espaces en dernier étage. Tous incluent une place de parking et un local à vélos pour simplifier vos déplacements quotidiens. Ne manquez pas l'opportunité de devenir propriétaire au coeur de la métropole du Grand Paris, desservie par le RER B, le tramway T1, et connectée aux axes routiers principaux (A1, A3, A86). D'ici 2030, vous profiterez également de la future station Drancy-Bobigny de la ligne 15 du métro, renforçant davantage la connectivité de ce quartier en plein essor. Pour rendre l'accession encore plus attractive, cette résidence vous permet d'acheter en TVA réduite, sous conditions d'éligibilité. Contactez-nous dès aujourd'hui pour découvrir votre futur chez vous.
Autres logements T3 du programme "L’Anatole"
| Disponibilité | Prix | No | Genre | Pièces | Surface | Étage | Disponibilité | Prix | ||
|---|---|---|---|---|---|---|---|---|---|---|
| Voir | Disponible | 294 597€ | A303 | Appt. | T3 | 61.5m2 | 3ème | Disponible | 294 597€ | Voir |
| Voir | Disponible | 310 521€ | A403 | Appt. | T3 | 63.9m2 | 4ème | Disponible | 310 521€ | Voir |
| Voir | Disponible | 303 697€ | A406 | Appt. | T3 | 63.6m2 | 4ème | Disponible | 303 697€ | Voir |
| Voir | Disponible | 323 033€ | A501 | Appt. | T3 | 66.75m2 | 5ème | Disponible | 323 033€ | Voir |
| Voir | Disponible | 315 071€ | A502 | Appt. | T3 | 65.65m2 | 5ème | Disponible | 315 071€ | Voir |
| Voir | Disponible | 320 758€ | A604 | Appt. | T3 | 64.15m2 | 6ème | Disponible | 320 758€ | Voir |
| Voir | Disponible | 291 185€ | A204 | Appt. | T3 | 63.9m2 | 0-RDC | Disponible | 291 185€ | Voir |