Prix
349 000€
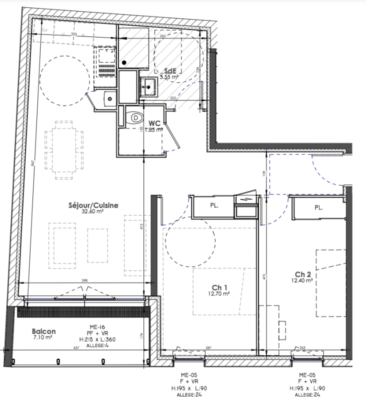
Type
Appt. au 3ème
Pièces
T3
Surface
68.5 m²
Exposition
-
Ville
Rouen (76000)
Livraison
2ème trimestre 2025
Informations
01 81 80 39 10

Présentation du programme "LE PARC DES MATHURINS"

LE PARC DES MATHURINS :
- Un emplacement exceptionnel dans le centre historique de Rouen, quartier Saint-Nicaise
- Des logements neufs de haut standing, du 2 au 5 pièces
- Un espace extérieur (terrasse ou balcon) pour chaque logement
- Des prestations d'exception : salle de fitness, espace arboré, domotique
- Pour investir : LMNP, Déficit Foncier

Autres logements T3 du programme "LE PARC DES MATHURINS"

Disponibilité Prix Genre Pièces Surface Étage
Voir
Disponible
399 000€ Appt. T3 79.05m2 2ème
DO NOT CLICK