Prix
101 232€ (TVA 20%)
89 000€ (TVA 5.5%)
101 232€ (TVA 20%)
89 000€ (TVA 5.5%)
Type
Appt. au 2ème
Appt. au 2ème
Pièces
-
-
Surface
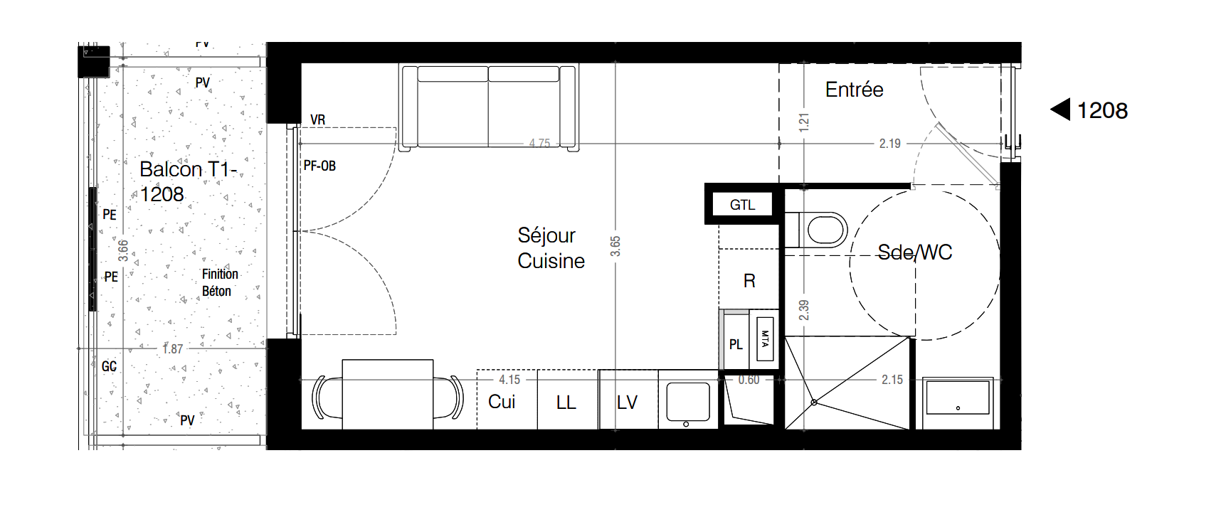
24.3 m²
24.3 m²
Exposition
Sud-Est
Sud-Est
Ville
Lormont (33310)
Lormont (33310)
Livraison
2ème trimestre 2027
2ème trimestre 2027
Informations
01 81 80 39 10
01 81 80 39 10
Présentation du programme "Belle Rive"
Située aux portes de Bordeaux, Lormont est une ville dynamique et en pleine transformation. Nichée sur la rive droite de la Garonne, elle bénéficie d'un cadre naturel exceptionnel avec le parc de l'Ermitage et des vues imprenables sur Bordeaux. Grâce à ses nombreuses infrastructures, ses écoles, commerces, et équipements culturels, Lormont offre un cadre de vie idéal, alliant calme et proximité de la métropole bordelaise.
Autres logements - du programme "Belle Rive"
Disponibilité | Prix | No | Genre | Pièces | Surface | Étage | Disponibilité | Prix | ||
---|---|---|---|---|---|---|---|---|---|---|
Voir | Disponible | 326 445€ | 1604 | Appt. | - | 79.3m2 | 6ème | Disponible | 326 445€ | Voir |
Voir | Disponible | 327 583€ | 1603 | Appt. | - | 78.7m2 | 6ème | Disponible | 327 583€ | Voir |
Voir | Disponible | 229 763€ | 1105 | Appt. | - | 62.5m2 | 1er | Disponible | 229 763€ | Voir |
Voir | Disponible | 352 607€ | 1505 | Appt. | - | 85.2m2 | 5ème | Disponible | 352 607€ | Voir |
Voir | Disponible | 259 336€ | 1206 | Appt. | - | 63.1m2 | 2ème | Disponible | 259 336€ | Voir |
Voir | Disponible | 296 872€ | 1602 | Appt. | - | 78.6m2 | 6ème | Disponible | 296 872€ | Voir |
Voir | Optionné | 101 232€ | 1207 | Appt. | - | 24.3m2 | 2ème | Optionné Mais pas encore vendu 😉 | 101 232€ | Voir |