Prix
245 000€
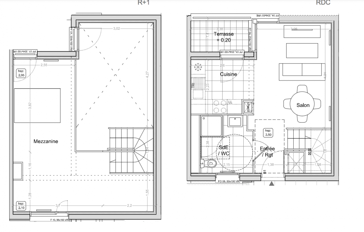
Type
Appt. au 2ème
Pièces
T2
Surface
48.97 m²
Exposition
-
Ville
Mérignac (33700)
Livraison
3ème trimestre 2027
Informations
01 81 80 39 10

Présentation du programme "HEDERA"

Pensée pour le confort de tous, HEDERA se compose de :
• 9 appartements du 2 au 3 pièces, dont certains en duplex avec mezzanine, pour une surface de vie évolutive ;
• 7 maisons familiales de 4 pièces avec jardin privatif, terrasse et agencement fonctionnel.
Chaque logement bénéficie d'une ou deux ouvertures sur l'extérieur (balcon, terrasse, loggia ou jardin), d'une entrée privative et de prestations durables : parquet stratifié, finitions soignées, équipements de qualité.

Le projet privilégie les mobilités douces avec :
• Voie réservée aux riverains et stationnement en sous-sol,
• Proximité immédiate des écoles, commerces, équipements sportifs, et transports (bus, tram, vélo en libre-service).
Vous profitez ainsi d'un quartier calme et végétalisé, idéal pour les familles comme pour les jeunes actifs en quête de confort urbain.

Certifiée NF Habitat HQE et conforme à la RT 2012, la résidence HEDERA s'inscrit dans la démarche environnementale de Vianova à travers son Pacte 3B : Bas carbone, Biodiversité, Bien-vivre. Un engagement concret pour un habitat durable.

Autres logements T2 du programme "HEDERA"

Disponibilité Prix Genre Pièces Surface Étage
Voir
Disponible
231 800€ Appt. T2 43.21m2 2ème
Voir
Disponible
245 000€ Appt. T2 49.01m2 2ème
Voir
Disponible
270 000€ Appt. T2 57.92m2 2ème